
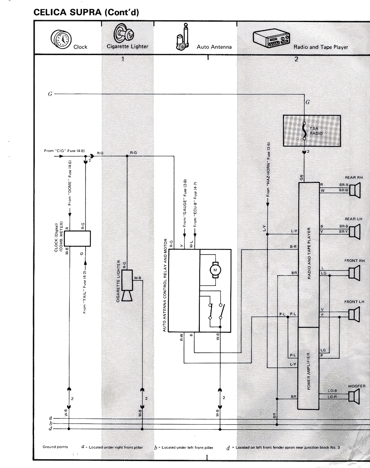
CELICA SUPRA (Cont'd)
Clock Cigarette Lighter Auto Antenna Radio and Tape Player
1 2
From "C/O" Fuse (4.5B)
R-G R-G
DOOR COURTESY
SWITCH (LH)
Front
Door
Fuse
COURTESY LIGHTS
CHARACTER ILLUMINATION LIGHT (R/C)
(P/CK Paint R/T)
RADIO
FRONT SPEAKER FADER SWITCH
RR RH
F L
REAR LH
R-L RR-L
FRONT RH
R-L R-L
FRONT LH
R-L R-L
ROOM LAMP FADER
WOOFER
L/O-B
L/O-B
Ground points d - Located under right front pillar b - Located under left front pillar d - Updated on left front fender apron near junction block No. 3