
100%
» 1 to Page 8)
3
7
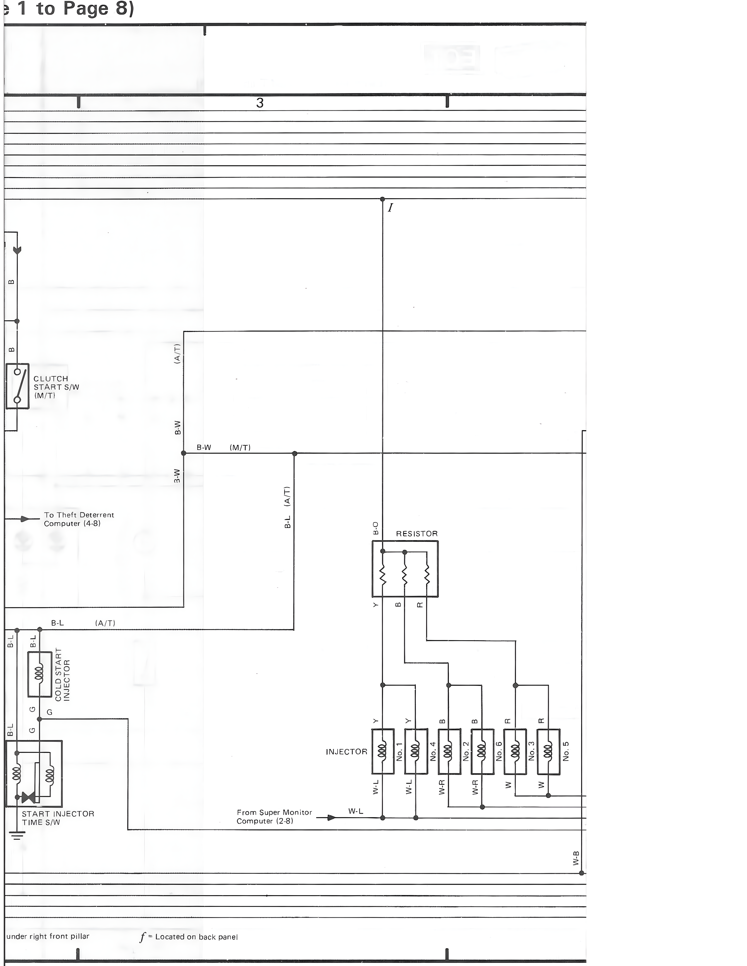
B
(A/T)
CLUTCH
START S/W
(M/T)
B-W
(M/T)
W-R
W-R
To Theft-Deterrent
Computer (4-8)
B-L
(A/T)
B-L
B-L
B-L
B-L
B-L
START
INJECTOR
START INJECTOR
TIME S/W
INJECTOR
Y
No.1
Y
No.2
B
No.3
B
No.4
R
No.5
R
No.6
W-L
W-L
W-L
W-L
W
W
From Super Monitor
Computer (2-8)
W-L
W-B
RESISTOR
B
R
B-O
B-O
(A/T)
B-L
B
G
G
under right front pillar
f - Located on back panel