
100%
2 TOYOTA SUPRA (Cont'd)
A
B
C
D
E
G
H
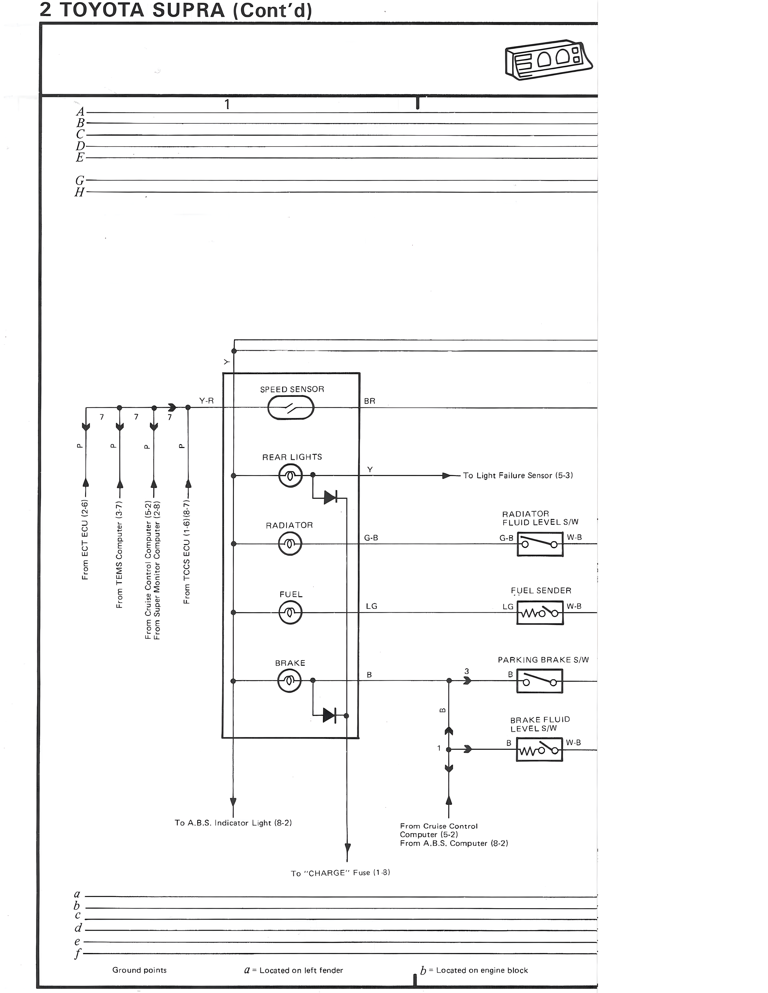
From ECU (2B-1)
7
e
From TEMS Computer (3-7)
?
e
From Cruise Control Computer (3-2)
From Starter Motor (6-3)
?
e
From TCCS ECU (1-6)(8-7)
?
P
Y-R
SPEED SENSOR
REAR LIGHTS
RADIATOR
FUEL
BRAKE
BR
Y
To Light Failure Sensor (5-3)
RADIATOR
FLUID LEVEL S/W
G-B
W-B
G-B
FUEL SENDER
LG
W-B
LG
PARKING BRAKE S/W
B
B
3
B
BRAKE FLUID
LEVEL S/W
B
W-B
1
To A.B.S. Indicator Light (8-2)
From Cruise Control
Computer (5-2)
From A.B.S. Computer (8-2)
To "CHARGE" Fuse (1 3)
a
b
c
d
e
f
Ground points
d = Located on left fender
b = Located on engine block