
100%
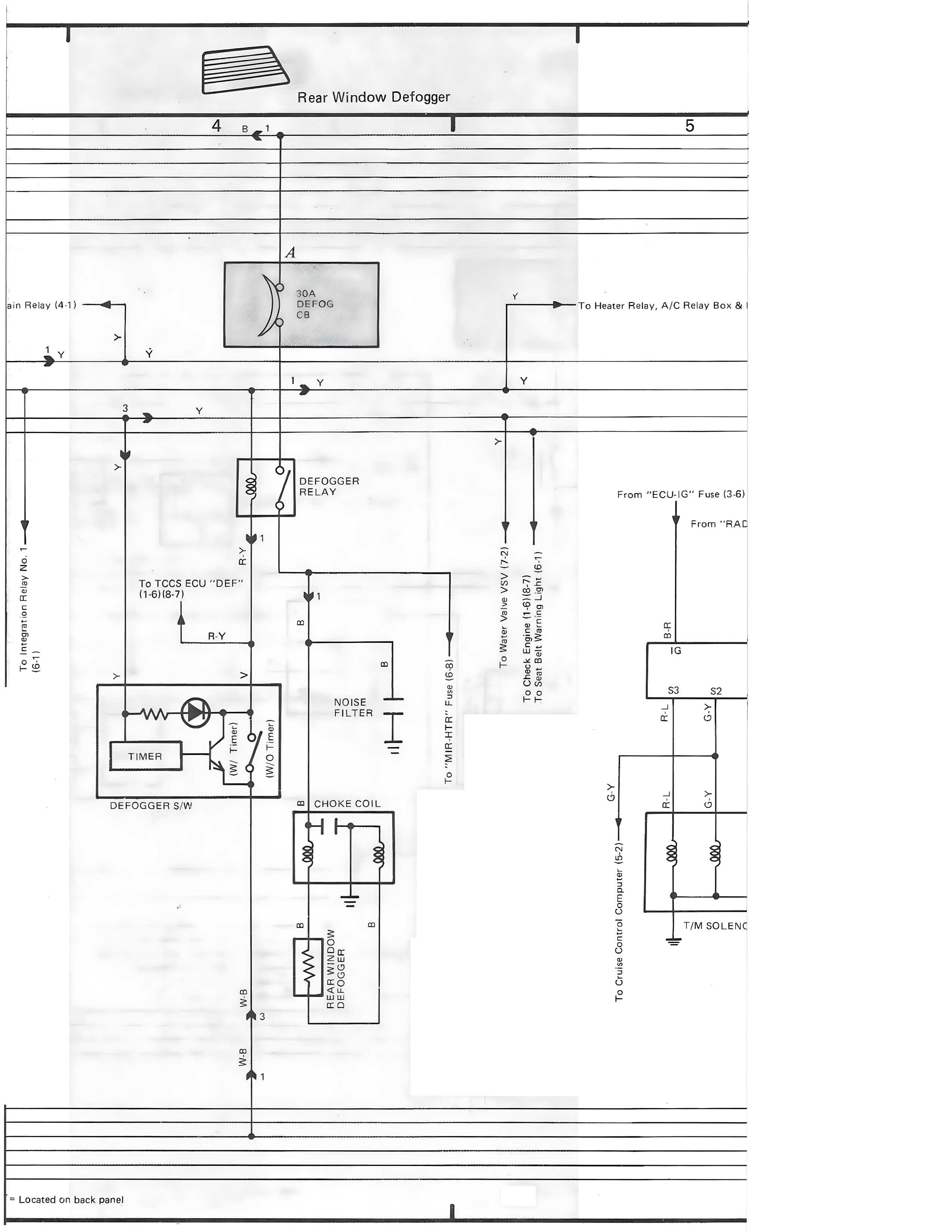
Rear Window Defogger
4
B
5
A
30A
DEFOG
CB
Y
To Heater Relay, A/C Relay Box & I
un Relay (4:1)
Y
Y
Y
1
Y
Y
3
DEFOGGER
RELAY
30A
From "ECU-IG" Fuse (3:6)
From "RAC
1
E
To TCCS ECU "DEF"
(1:6)(6:7)
1
B
R-Y
BR
IG
V
B
NOISE
FILTER
S3
S2
R-L
G-Y
V
WNG Thrmst
TIMER
V
G-Y
R-L
G-Y
DEFOGGER S/W
B
CHOKE COIL
B
30A
30A
To Cruise Control Computer (15:2)
REAR WINDOW
GLASS
DEFOGGER
T/M SOLENC
B
W-B
3
W-B
1
* Located on back panel
To Check Engine (8:6)(8:7)
To Seat Belt Warning Light (6:1)
To "Main" Fuse-WSU (7:2)
To Integration Relay No. 1
(5:5)
To "Main HTR" Fuse (6:3)