
100%
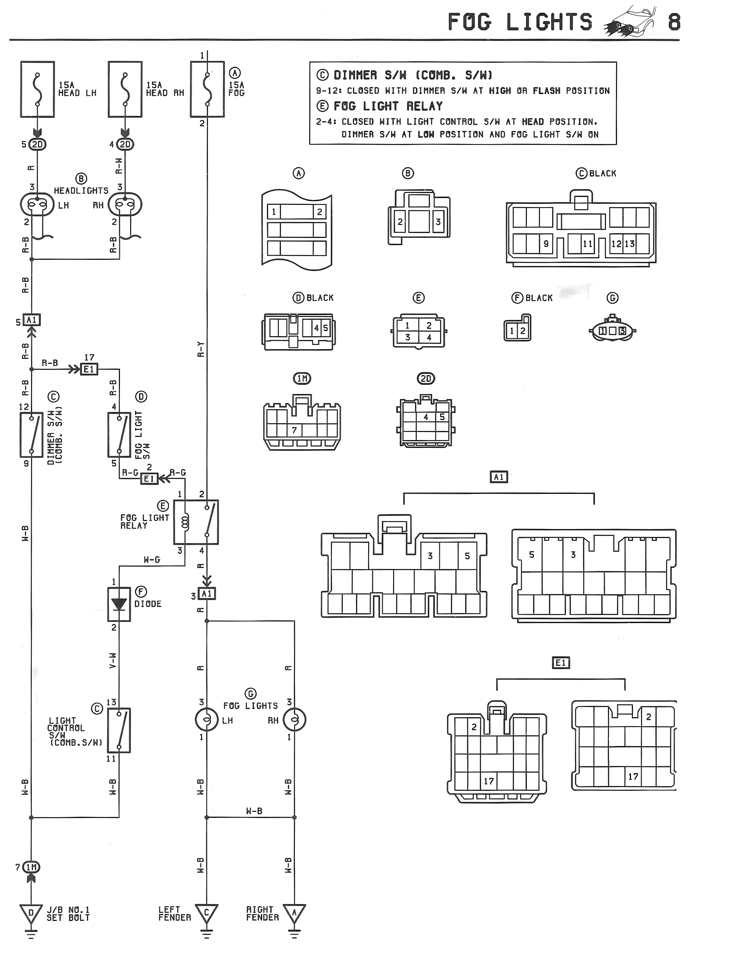
FOG LIGHTS 8
15A HEAD LH
15A HEAD RH
FOG
1
2
5 2D
4 2D
B
HEADLIGHTS
LH RH
2
2
H-B
H-B
H-B
17
R-B
E1
H-B
DIMMER LOWER S/W
H-B
LIGHT CONTROL S/W
R-G
R-G
E1
H-B
FOG LIGHT RELAY
1 2
E
6
H-G
3 4
M-G
H-B
1
DIODE
2
H-I
H-B
H-B
H-B
13
3
FOG LIGHTS
LH RH
LIGHT CONTROL S/W (COMB. S/W)
1
1
11
H-B
H-B
H-B
H-B
W-B
7 1D
1/B NO.1 SET BOLT
LEFT FENDER
RIGHT FENDER
© DIMMER S/W (COMB. S/W)
9-12+ CLOSED WITH DIMMER S/W AT HIGH OR FLASH POSITION
© FOG LIGHT RELAY
2-4+ CLOSED WITH LIGHT CONTROL S/W AT HEAD POSITION, DIMMER S/W AT LOW POSITION AND FOG LIGHT S/W ON
A
BLACK
B
BLACK
1 2
2 3
9 11 12 13
D BLACK
E
F BLACK
G
4 5
1 2
1D 1B
1R
2D
7
4 5
A1
3 5
5 3
E1
2
17
2
17