
100%
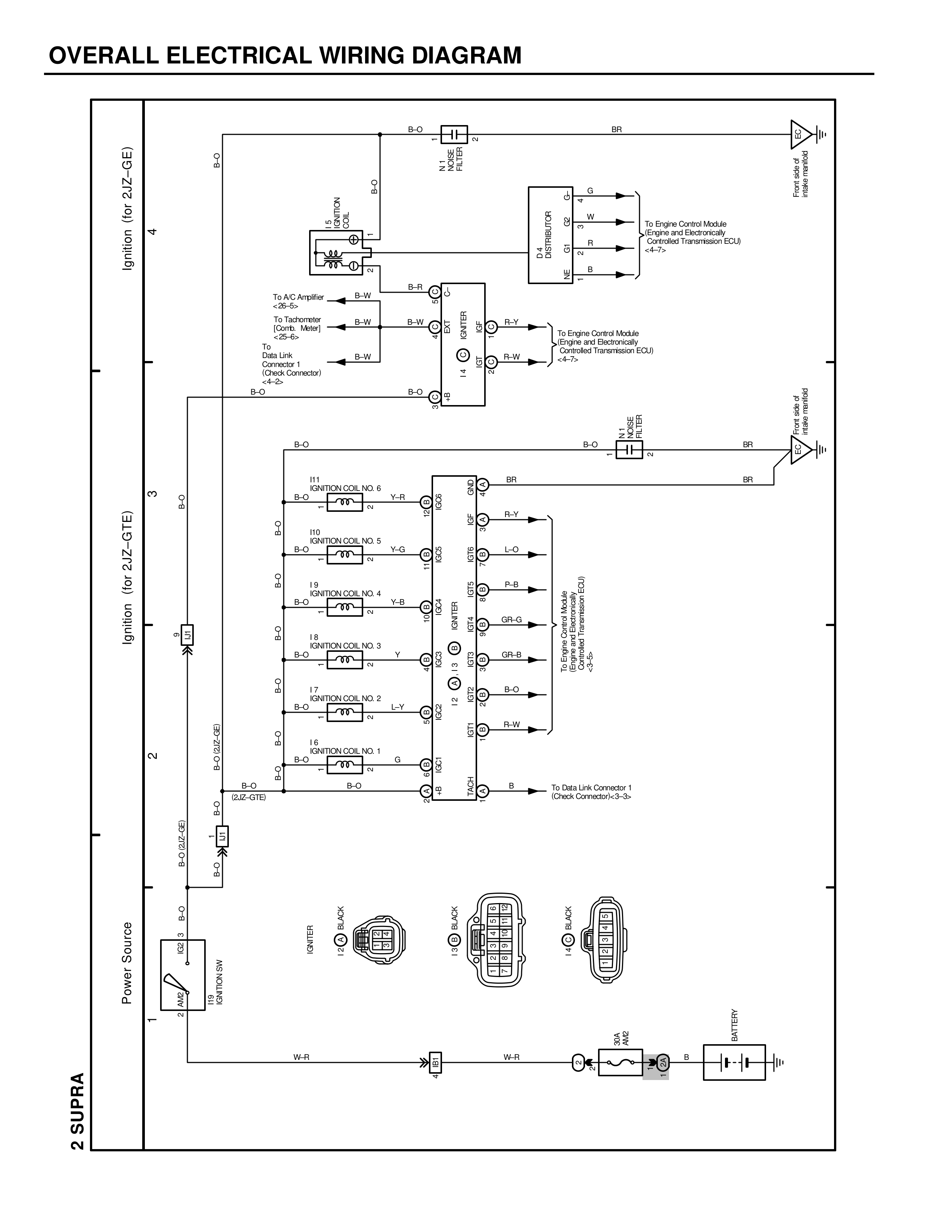
OVERALL ELECTRICAL WIRING DIAGRAM
2 SUPRA
Ignition (for 2JZ-GE)
Ignition (for 2JZ-GTE)
Power Source
B-O
B-O
IG2
IG1
ST
BACK-UP SW
IG
ST
B-O
B-O
W-R
BATTERY
IG2 COIL
TO A/C Amplifier
(Cont. 3-3~
To Tachometer
(Cont. 3-3~
To
Data Link
Connector 1
(Check Connector)
4-3~
B-W
B-W
B-W
B-O
B-H
B-W
B-O
R-Y
R-W
B-O
B-O
12
13
14
Distributor
IGF
NE
G
G
W
B
IG
E
Engine Control Module
(J-Engine and Electronically
Controlled Transmission ECU)
2-2~
To Engine Control Module
(J-Engine and Electronically
Controlled Transmission ECU)
2-2~
BR
BR
BR
BR
NE
E
G
IGT
BACK-UP 2 (25)
BACK-UP1 (25)
16
IGNITION COIL NO. 1
17
IGNITION COIL NO. 2
18
IGNITION COIL NO. 3
19
IGNITION COIL NO. 4
110
IGNITION COIL NO. 5
111
IGNITION COIL NO. 6
B-O
B-O
B-O
B-O
B-O
B-O
B-O
B(+IG1B)
G
L-Y
Y
Y-B
Y-G
L-R
IG1
IG2
IG3
IG4
IG5
IG6
IGT
IGT
IGT
IGT
IGT
IGT
IG1
IG2
IG3
IG4
IG5
IG6
R-Y
L-O
P-B
GR-O
GR-B
B-O
B-W
B
Engine Control Module
(J-Engine and Electronically
Controlled Transmission ECU)
2-2~
To Data Link Connector 1
(Check Connector) 3-3~
BLACK
BLACK
BLACK
IGNITER
W-R
W-R
B
BATTERY
(For Intake air
heater control)
(For Intake air
heater control)