
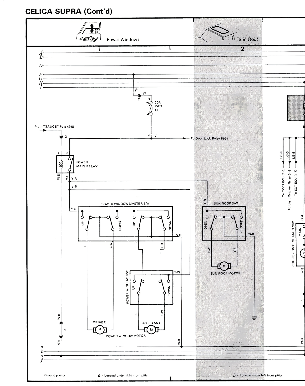
CELICA SUPRA (Cont'd)
Power Windows
Sun Roof
From "GAUGE" Fuse (2-B)
30A
Main
CB
To Door Lock Relay (S-1)
POWER
MAIN RELAY
V-B
V-B
POWER R WINDOW MASTER R SW
DOWN
UP
UP
DOWN
DRIVER
ASSISTANT
SUN ROOF S/W
SUN ROOF MOTOR
DOWN
UP
POWER R WINDOW MOTOR
POWER R WINDOW MOTOR
Ground points
d = Located under right front pillar
b = Located under left front pillar