
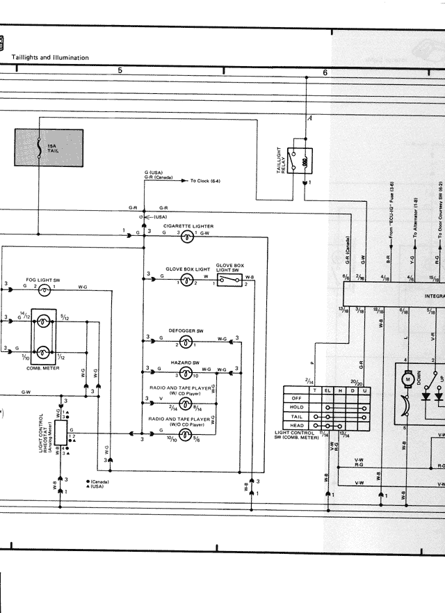
Taillights and Illumination
5
6
4
TAIL
TAIL
B (USA)
2.5R (Canada)
To Clock (6-6)
G-R
G-R
B (USA)
1
CIGARETTE LIGHTER
B-W (Canada)
0
L-GN
GLOVE BOX LIGHT
B-W
GLOVE BOX
LIGHT
W-G
0
W
5
FOG LIGHT SW
W-G
G-Y
5
G-Y
8
G-W
9
6
G-Y
DEFOGGER SW
B-W
W-G
6
DOOR SW R-B
G-Y
HAZARD SW
G-Y
W-G
8
6
DOOR SW L-F
7
WIPER AND WASHER SW
W (Oil Press.)
(M/T (USA))
5
W-G
Y
G-W
RADIO AND TAPE PLAYER 2
(WOOD PANEL)
0
OFF
I
TAIL
Y-R
Y-W
OFF
BL
D
U
Y-W
P
TAIL
LIGHT CONTROL
SW (DOOR METER)
HEAD
Y-W
Y-W
W (Canada)
B (USA)
9
3
Y-W
INTEGR