
100%
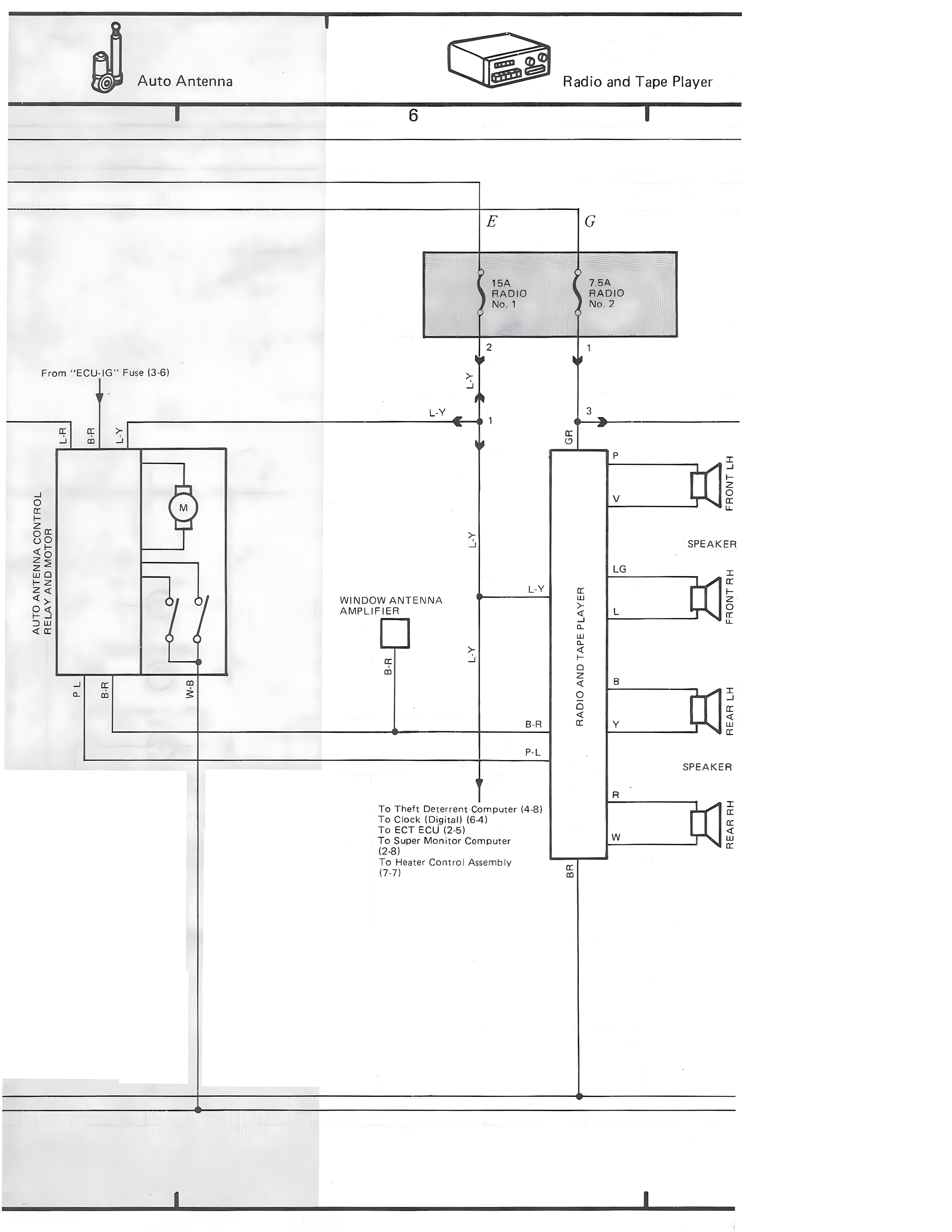
Auto Antenna
Radio and Tape Player
6
E
G
15A RADIO No.1
7.5A RADIO No.2
2
1
L-Y
From "ECU-IG" Fuse (3-6)
L-Y
1
L-Y
3
BL
BR
L-Y
GR
P
FRONT RH
AUTO ANTENNA CONTROL RELAY AND MOTOR
M
V
SPEAKER
L-Y
LG
FRONT LH
L-Y
WINDOW ANTENNA AMPLIFIER
RADIO AND TAPE PLAYER
BLR
L-Y
B
REAR LH
B-R
V
P-L
SPEAKER
BR
R
To Theft Deterrent Computer (4-8)
To Clock (Digital) (6-4)
To ECT ECU (3-6)
To Super Monitor Computer (4-8)
To Heater Control Assembly (7-7)
W
REAR RH
BR