TSRM
/
MK3 Supra
/
Wiring Diagrams
SEARCH
Ctrl+K
Repair Manual
Wiring Diagrams
MK3
40 sections · 162 pages
INTRO
Introduction & How To Use
6
TRBL
Troubleshooting
2
GLOS
Glossary of Terms and Symbols
2
S1
Power Source
4
S2
Starting and Ignition Systems
4
S3
EFI System
12
S4
Charging System
2
S5
Light Auto Turn Off System
2
S6
Turn Signal and Hazard Warning Lights
2
S7
Headlights
3
S8
Fog Lights
1
S9
Interior Lights
3
S10
Back-Up Lights
1
S11
Stop Lights
2
S12
Taillights and Illumination
5
S13
Remote Control Mirrors
1
S14
Rear Window Defogger and Mirror Heater
2
S15
Front Wiper and Washer
2
S16
Door Locks
3
S17
Rear Wiper and Washer
1
S18
Power Windows
2
S19
Power Seat
2
S20
Cruise Control
4
S21
ECT System
4
S22
Anti-Lock Brake System (ABS)
4
S23
Headlight Cleaner
1
S24
Cigarette Lighter and Clock
1
S25
TEMS
5
S26
Unlock and Seat Belt Warning
1
S27
Super Monitor
3
S28
Horns
1
S29
Theft Deterrent System
4
S30
Auto Antenna
2
S31
Radio and Tape Player
2
S32
Combination Meter
4
S33
Automatic Air Conditioner
8
S34
Ground Points
4
RL
Relay Locations
3
EWR
Electrical Wiring Routing
5
OWD
Overall Wiring Diagram
42
← p.034
OWD
/
Overall Wiring Diagram
35 / 42
p.036 →
−
100%
+
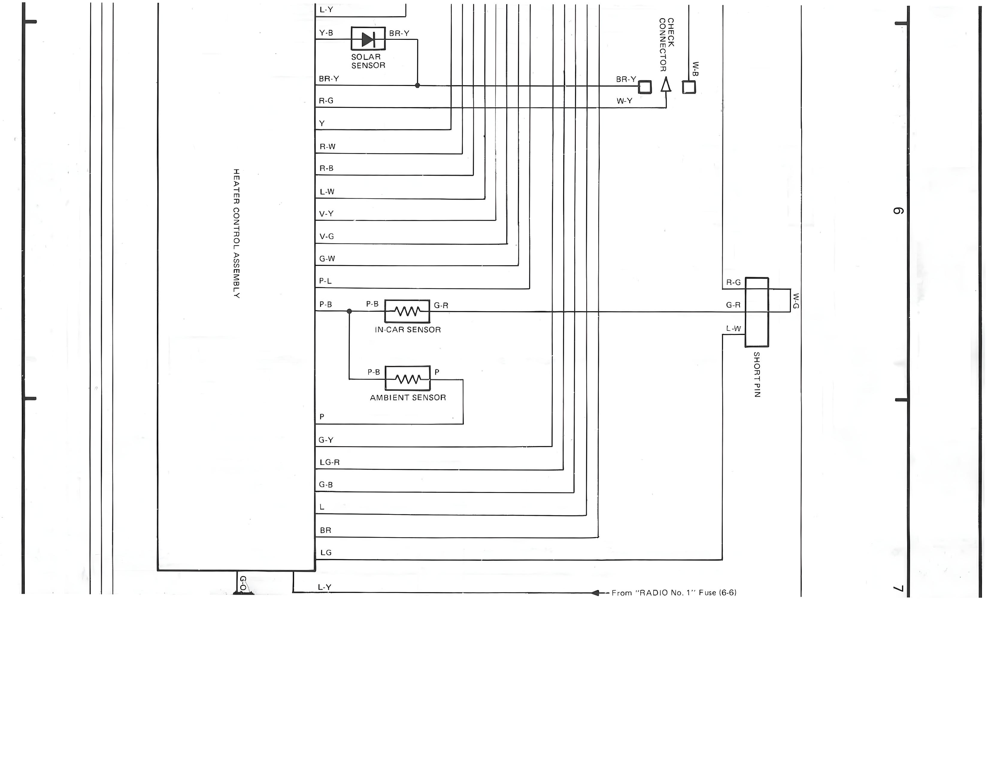
L-Y Y-B BR-Y SOLAR SENSOR BR-Y BR-Y W-Y CHECK CONNECTOR R-G Y R-W R-B L-W V-Y V-G G-W P-L P-B P-B G-R R-G G-R A/C IN-CAR SENSOR L-W SHORT PIN P-B P AMBIENT SENSOR P G-Y LG-R G-B L BR LG HEATED IGNITION ASSEMBLY C L-Y From "RADIO No. 1" Fuse (6-6) 6