
100%
16
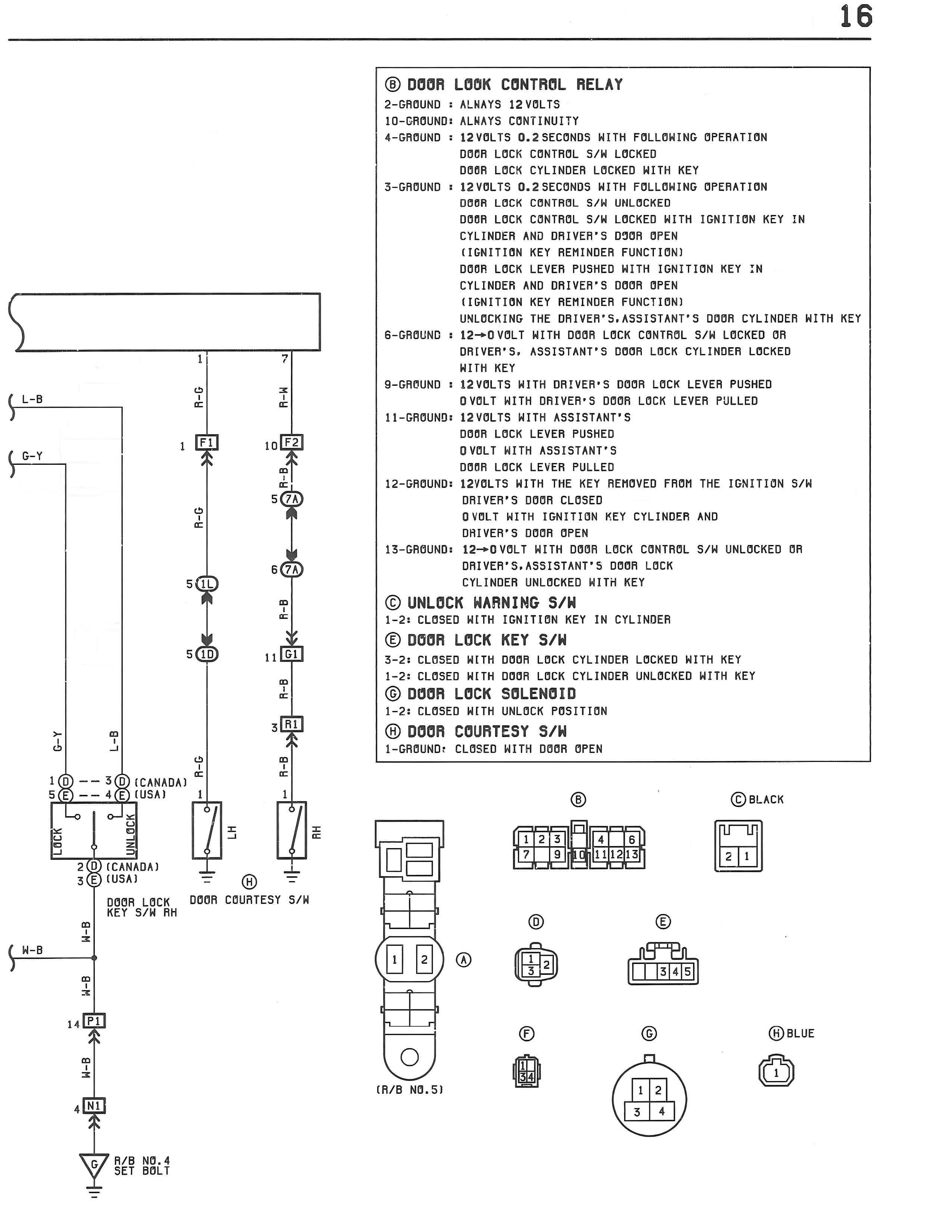
⑧ DOOR LOCK CONTROL RELAY
2-GROUND : ALWAYS 12 VOLTS
10-GROUND: ALWAYS CONTINUITY
4-GROUND : 12 VOLTS 0.2 SECONDS WITH FOLLOWING OPERATION
DOOR LOCK CONTROL S/M LOCKED
DOOR LOCK CYLINDER LOCKED WITH KEY
3-GROUND : 12 VOLTS 0.2 SECONDS WITH FOLLOWING OPERATION
DOOR LOCK CONTROL S/M UNLOCKED
DOOR LOCK CONTROL S/M LOCKED WITH IGNITION KEY IN
CYLINDER AND DRIVER'S DOOR OPEN
(IGNITION KEY REMINDER FUNCTION)
DOOR LOCK LEVER PUSHED WITH IGNITION KEY IN
CYLINDER AND DRIVER'S DOOR OPEN
(IGNITION KEY REMINDER FUNCTION)
UNLOCKING THE DRIVER'S, ASSISTANT'S DOOR CYLINDER WITH KEY
6-GROUND : 12 ―0 VOLT WITH DOOR LOCK CONTROL S/M LOCKED OR
DRIVER'S, ASSISTANT'S DOOR LOCK CYLINDER LOCKED
WITH KEY
9-GROUND : 12 VOLTS WITH DRIVER'S DOOR LOCK LEVER PUSHED
0 VOLT WITH DRIVER'S DOOR LOCK LEVER PULLED
11-GROUND: 12 VOLTS WITH ASSISTANT'S
DOOR LOCK LEVER PUSHED
0 VOLT WITH ASSISTANT'S
DOOR LOCK LEVER PULLED
12-GROUND: 12VOLTS WITH THE KEY REMOVED FROM THE IGNITION S/M
DRIVER'S DOOR CLOSED
0 VOLT WITH IGNITION KEY CYLINDER AND
DRIVER'S DOOR OPEN
13-GROUND: 12―0 VOLT WITH DOOR LOCK CONTROL S/M UNLOCKED OR
DRIVER'S, ASSISTANT'S DOOR LOCK
CYLINDER UNLOCKED WITH KEY
⑥ UNLOCK WARNING S/M
1-2: CLOSED WITH IGNITION KEY IN CYLINDER
⑧ DOOR LOCK KEY S/M
3-2: CLOSED WITH DOOR LOCK CYLINDER LOCKED WITH KEY
1-2: CLOSED WITH DOOR LOCK CYLINDER UNLOCKED WITH KEY
⑧ DOOR LOCK SOLENOID
1-2: CLOSED WITH UNLOCK POSITION
⑧ DOOR COURTESY S/M
1-GROUND: CLOSED WITH DOOR OPEN
L-B
G-Y
1 F1
H-G
5 7A
5 D
5 10
H-G
3 B1
H-G
1(D) ― 2(C) (CANADA)
5(C) ― 4(C) (USA)
:
:
UNLOCK LOCK
:
:
2(D) (CANADA)
3(C) (USA)
DOOR LOCK DOOR COURTESY S/M
KEY S/M RH
H-B
H-B
14 F1
H-R
4 N1
R/B NO.4
SET BOLT
10 F2
G-L
6 7A
P-B
11 D1
P-B
LH RH
⑧
[Connector diagrams showing:
B: 6-pin connector (1,2,3,4,5 and additional pins 7,9,10,11,12,13)
E: 4-pin connector (1,3,4,5)
D: 3-pin connector
F: Multi-pin connector
G: 4-pin circular connector (1,2,3,4)
© BLACK (2-pin)
⑪ BLUE (1-pin)]
(R/B NO.5)