
100%
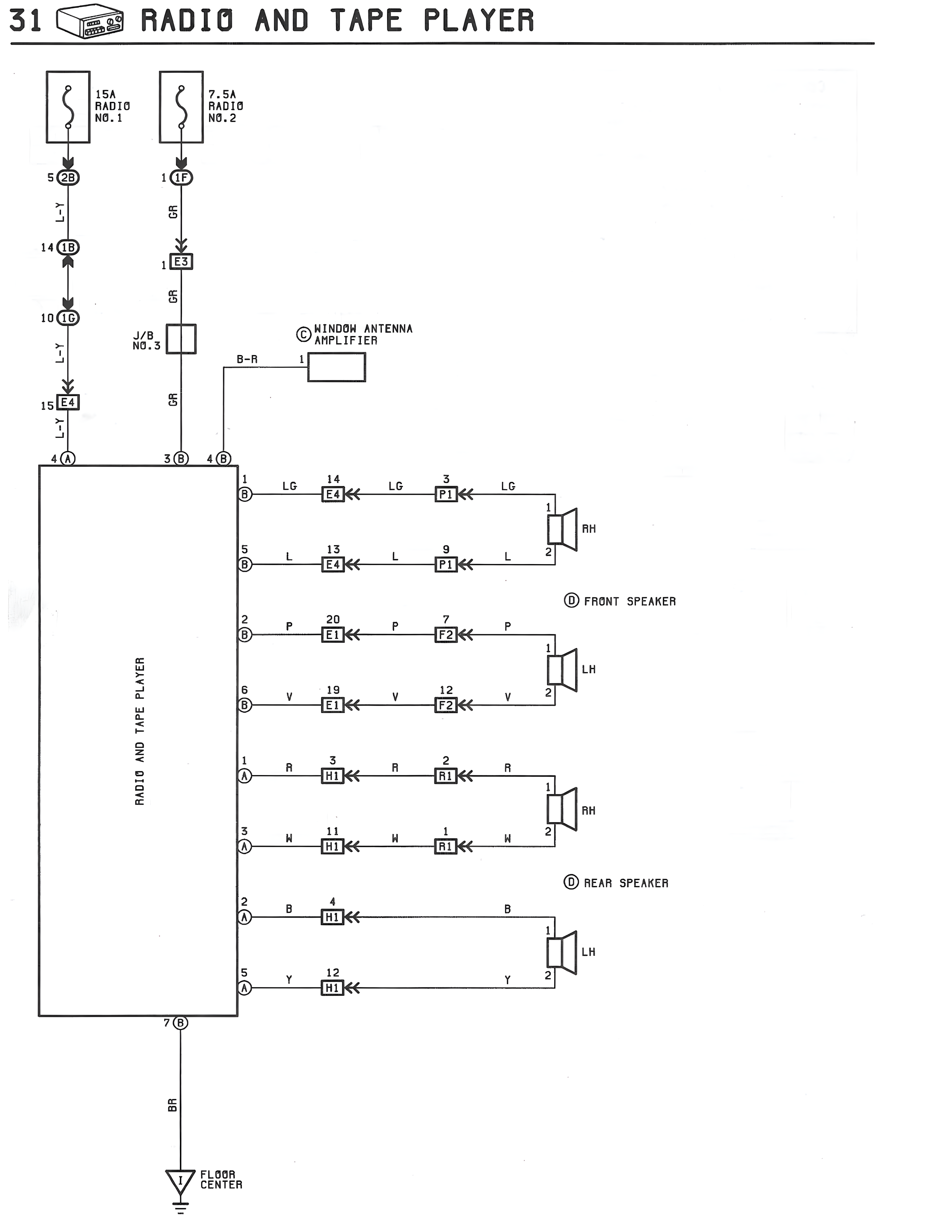
31 RADIO AND TAPE PLAYER
15A RADIO NO.1
7.5A RADIO NO.2
S 2B
1 IF
I
GR
14 IB
I
GR
10 IG
I
E4
GR
15 E4
I
E3
GR
4 A
3 B
4 B
I/B NO.3
WINDOW ANTENNA AMPLIFIER
B-R
1
1 B
LG
14 E4
LG
3 P1
LG
1 RH
2
5 B
L
13 E4
L
9 P1
L
2
FRONT SPEAKER
2 B
P
20 E1
P
7 P2
P
1 LH
2
8 B
V
19 E1
V
12 P2
V
2
1 A
R
3 H1
R
2 H1
R
1 RH
2
3 A
W
11 H1
W
1 H1
W
2
REAR SPEAKER
2 A
B
4 H1
B
1 LH
2
5 A
Y
12 H1
Y
2
7 B
BR
FLOOR CENTER
RADIO AND TAPE PLAYER