
100%
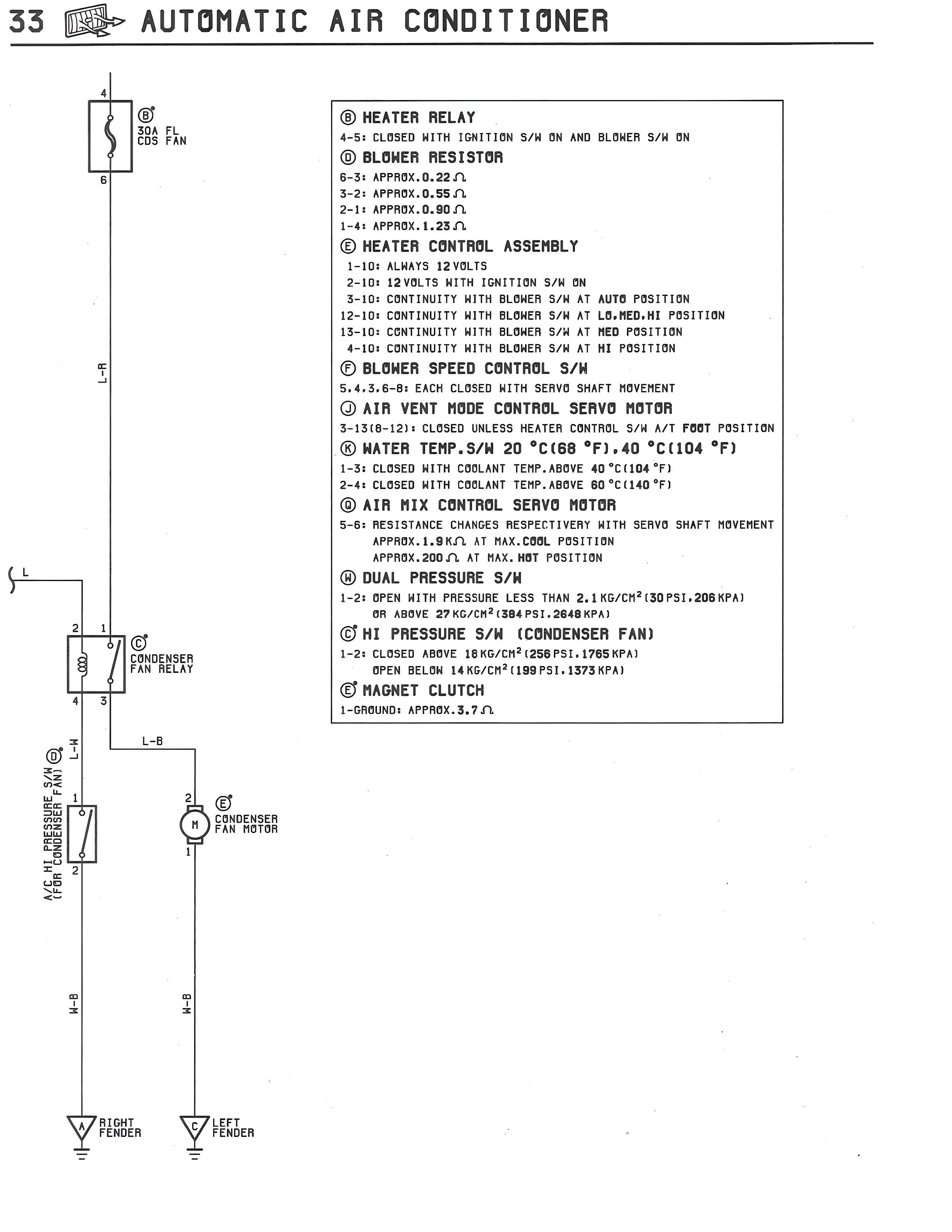
33 AUTOMATIC AIR CONDITIONER
4
6
8 20A FL.
C05 FAN
6
L-H
2 1
0
L
C
CONDENSER
FAN RELAY
4 3
L-B
G
A/C Hi PRESSURE S/W
1
0
2
L-H
2 1
E
M CONDENSER
FAN MOTOR
2
L-H
L-H
RIGHT
FENDER
LEFT
FENDER
8 HEATER RELAY
4-5: CLOSED WITH IGNITION S/W ON AND BLOWER S/W ON
9 BLOWER RESISTOR
6-3: APPROX.0.22Ω
3-2: APPROX.0.55Ω
2-1: APPROX.0.80Ω
1-4: APPROX.1.23Ω
C HEATER CONTROL ASSEMBLY
1-10: ALWAYS 12VOLTS
2-10: 12VOLTS WITH IGNITION S/W ON
3-10: CONTINUITY WITH BLOWER S/W AT AUTO POSITION
12-10: CONTINUITY WITH BLOWER S/W AT LO,MED,HI POSITION
13-10: CONTINUITY WITH BLOWER S/W AT MED POSITION
4-10: CONTINUITY WITH BLOWER S/W AT HI POSITION
D BLOWER SPEED CONTROL S/W
5,4,3,6-8: EACH CLOSED WITH SERVO SHAFT MOVEMENT
E AIR VENT MODE CONTROL SERVO MOTOR
3-13(8-12): CLOSED UNLESS HEATER CONTROL S/W A/T FOOT POSITION
F WATER TEMP.S/W 20 °C(68 °F),40 °C(104 °F)
1-3: CLOSED WITH COOLANT TEMP.ABOVE 40°C(104°F)
2-4: CLOSED WITH COOLANT TEMP.ABOVE 60°C(140°F)
G AIR MIX CONTROL SERVO MOTOR
5-6: RESISTANCE CHANGES RESPECTIVELY WITH SERVO SHAFT MOVEMENT
APPROX.1.9KΩ AT MAX.COOL POSITION
APPROX.200Ω AT MAX.HOT POSITION
H DUAL PRESSURE S/W
1-2: OPEN WITH PRESSURE LESS THAN 2.1KG/CM²(30PSI,206KPA)
OR ABOVE 27KG/CM²(384PSI,2848KPA)
J HI PRESSURE S/W (CONDENSER FAN)
1-2: CLOSED ABOVE 18KG/CM²(256PSI,1765KPA)
OPEN BELOW 14KG/CM²(199PSI,1373KPA)
K MAGNET CLUTCH
1-GROUND: APPROX.3.7Ω