
100%
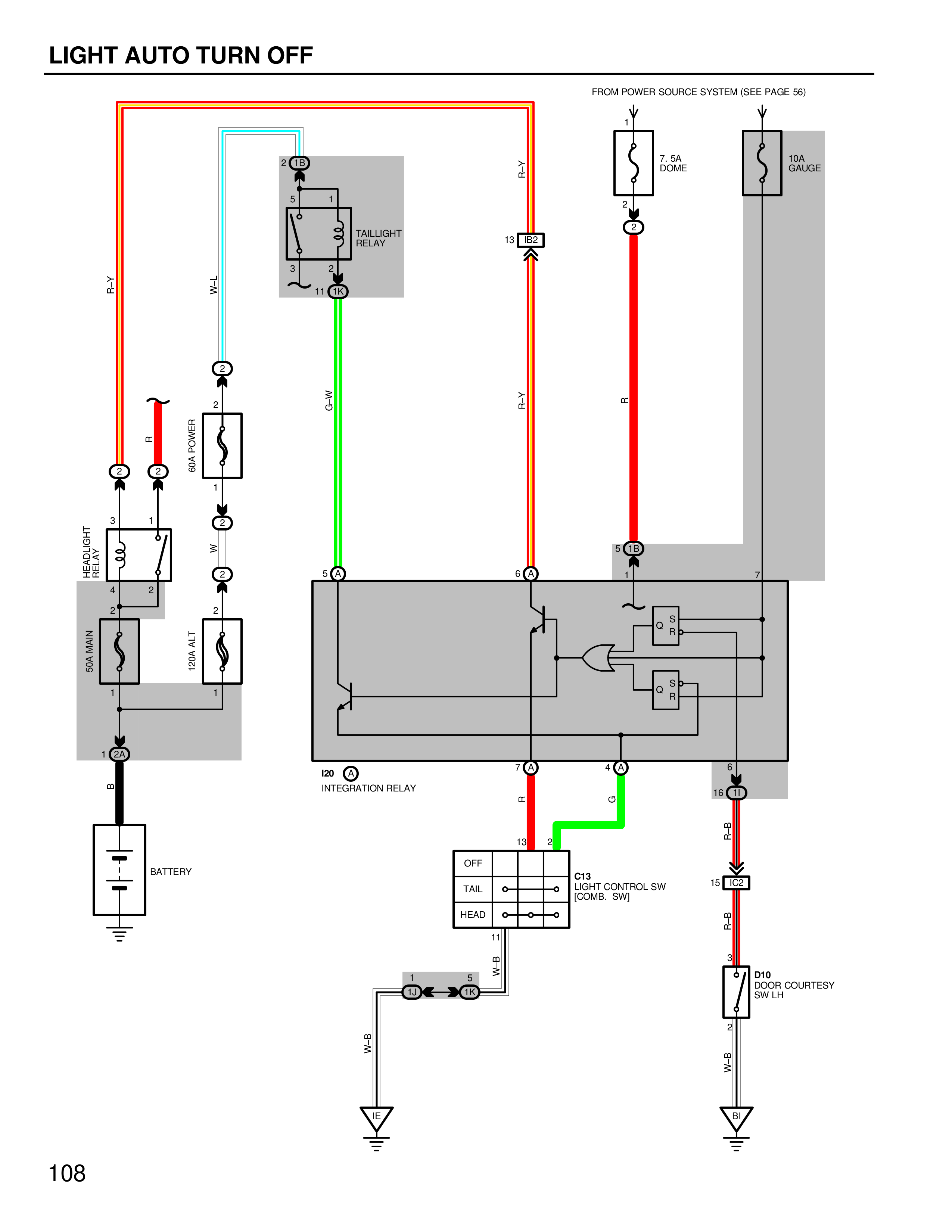
LIGHT AUTO TURN OFF
FROM POWER SOURCE SYSTEM (SEE PAGE 56)
7. 5A DOME
10A GAUGE
2
F15
15 E2
R
TAILLIGHT RELAY
2 1
3 2
15
1
R-Y
W-L
R-Y
R
H
G-W
H
R
2
8W POWER
2
1
R
3
1
2
W
HEADLIGHT RELAY
4 2
F 15
3SM MAIN
8DV ALT
5 G
7 4
B
B20 A
INTEGRATION RELAY
7 O
E
BATTERY
13 C
2 E
4 O
G
R-B
15 D11
OFF
TAIL
C13 LIGHT CONTROL SW [COMB. SW]
15 E2
HEAD
R-B
11
W-B
1M 4 1K
4 7 D10 DOOR COURTESY SW LH
2
W-B
B
W-B
108