
100%
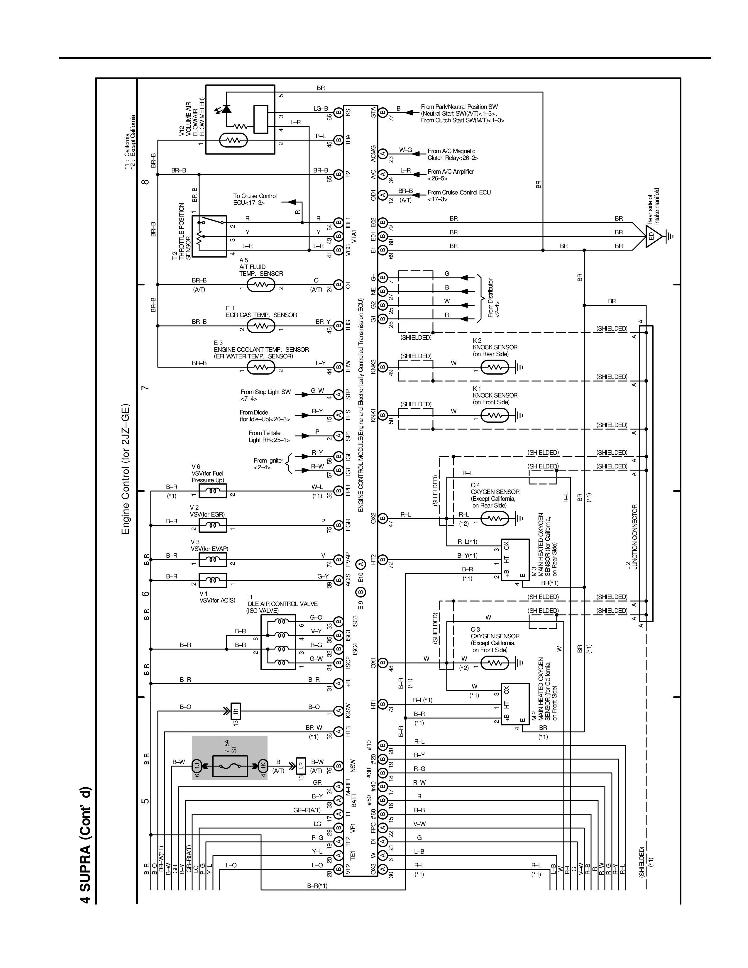
Engine Control (for 2JZ-GE)
4 SUPRA (Cont. d)
VB (ac-BD)
B-W (ac-BD)
P (ac-BD)
L-B (ac-BD)
B-R
(*1)
B-R
B-R
B-R
B-R
B-R
B-R
B-R
B-O
B-W
B-W
GR (R)*1)
LG
P-G
Y-L
L-O
B-R(*1)
VS (Sc-BD)
VS (Sc-BD)
RELAY
CONNECTOR
V5
VOLTAGE FUEL
Pressure Up
(*1)
V-2
VOLTAGE EGR
V-3
VOLTAGE EV VS
(*1)
V-3
VOLTAGE ACB
IDLE AIR CONTROL VALVE
(ISC VALVE)
BR
BR-R
BR
VS (Sc-BD)
FUEL PUMP
RELAY
CONNECTOR
BR-B
BR-B
BR-B
BR-B
A5
AT FLUID
TEMP. SENSOR
E-1
E-J1 GAS TEMP. SENSOR
E-J
ENGINE COOLANT TEMP. SENSOR
(EFI WATER TEMP. SENSOR)
BR-B
From Stop Light SW
+D-1->
From Door
for Idle-Up <D-4>
From Tailate
Light PS <S-1>
From Igniter
<S-2>
GR
*1
*2
L-R
L-R
To Cruise Control
ECU<1-7-3>
BR-B
(*7)
BR-Y
L-Y
G-W
BR-Y
R
BR-Y
R-W
W-L
Y
P
Y
G-Y
G-O
V-Y
R-O
G-W
LG-R
P-L
BR
BR-B
BR
BR-W
GR
B-Y
B-W
L-O
L-O
ECI
1
2
3
4
5
6
7
8
9
10
11
12
13
14
15
16
17
18
19
20
21
22
23
24
25
26
27
28
29
30
31
32
33
34
35
36
37
38
39
40
ENGINE CONTROL COMPUTER
ENGINE CONTROL MODULE (or)
ELECTRONIC CONTROL UNIT
C22
C21
C20
C19
C18
C17
C16
C15
C14
C13
C12
C11
C10
C9
C8
C7
C6
C5
C4
C3
C2
C1
NE
G1
G2
G
E2
L
STA
ACT
BATT
EO1
EOM
(SHIELDED)
(SHIELDED)
E41
42
43
44
45
46
47
48
49
50
51
52
53
54
55
56
57
58
59
60
61
62
63
64
65
66
67
68
69
70
71
72
73
74
75
76
77
78
79
80
From Park/Neutral Position SW
-Neutral Start SW(AT)<1-1-3>
From Clutch Start SW(MT)<1-3>
From A/C Magnetic
Clutch Relay<26-2>
From A/C Amplifier
<26-6>
From Control ECU
<17-3>
BR
BR
BR
BR
BR
BR
BR
BR
BR
G
B
W
R
(SHIELDED)
(SHIELDED)
W
(SHIELDED)
W
R-L
R-L
R-L
R-L(*1)
B-Y(*1)
B-R
(*1)
W
(*2)
B-L(*1)
B-R
(*1)
R-L
(*1)
R-Y
R-G
R-W
R
L-B
V-W
G
L-B
R-L
(*1)
From A/C Magnetic
Clutch Relay<26-2>
L-R
W-G
L-R
BR-B
(AT)
BR
KNOCK SENSOR
(on Rear Side)
K-1
KNOCK SENSOR
(on Front Side)
(SHIELDED)
(SHIELDED)
(SHIELDED)
(SHIELDED)
(SHIELDED)
(SHIELDED)
OX
OXYGEN SENSOR
(Except California,
on Rear Side)
KNOCK SENSOR
SUB-WIRE
PRPS-28-38
BR-Y
(*1)
OX
OXYGEN SENSOR
(Except California,
on Front Side)
KNOCK SENSOR
SUB-WIRE
PRPS-28-38
BR
(*1)
W
BR
R-L
(*1)
KNOCK CONNECTOR
KNOCK CONNECTOR
BR
(*1)
BR
(SHIELDED)
(SHIELDED)
(SHIELDED)