
100%
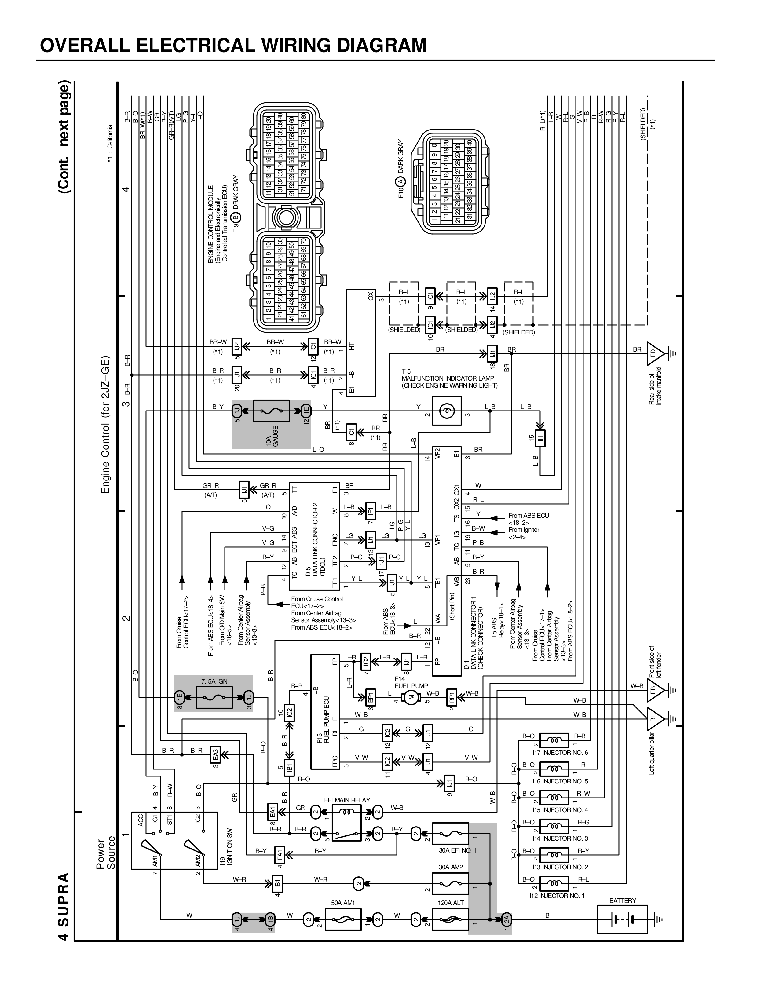
OVERALL ELECTRICAL WIRING DIAGRAM
(Cont. next page)
4 SUPRA
Power Source
7
2
ACC
IG1 E
IG
IG2
ST
B
SW
B
IGNITION
SWITCH
W-R
W
50A AM1
50A ALT
EFI MAIN RELAY
B-R
B-R
W-B
B-Y
B-Y
Y
30A EFI NO. 1
30A AMG
120A ALT
B-O
B-O
B-O
B-O
B-O
W-B
R-L
B-Y
R-L
112 INJECTION NO. 6
R
112 INJECTION NO. 5
B-W
112 INJECTION NO. 4
B-O
114 INJECTION NO. 3
B-Y
114 INJECTION NO. 2
114 INJECTION NO. 1
BATTERY
B
From ABS
ECU <1>
From ABS
ECU <2>
From ABS-ECU<3>
2
From HAC
ECU <4>
From <4-5>
From <4-5>
3
From <4-5>
From <4-5>
From <4-5>
ECU
4-5>
Sensor Assembly <1-3-5>
From ABS ECU <1-8-9>
From Cruise Control
ECU <1-7-3>
From Cruise Control
ST
B-R
B-O
B-R
ECM (FOR <8>
CONNECTOR)
DISPLAY
MANUAL INDICATION CONTROL
ECM (FOR 4A CONNECTOR)
ECM FOR C-MAIN AND <1-2-4>
3
B-Y
B-Y
V-G
V-G
GR-R
GR-R
(A/T)
(A/T)
O
L-B
L-B
LG
LG
P-G
P-G
Y-L
Y-L
ECM (FOR <8> CONNECTOR)
5
4
IGNITION
SWITCH
B-O
BR-W
(-1)
BR-W
(-1)
B-R
(-1)
B-R
(-1)
B-Y
(-1)
BR-W
(-1)
B-R
(-1)
Y
T.R
MANUAL
LOOP
BR
MANUAL
LOOP
L-O
BR
W
R-L
V
B-W
P-R
B-Y
B-R
CONNECTOR
<B> C
6
B-R
(-1)
W-B
W-B
P-L
W-B
P-L
W-B
W-B
FUEL PUMP
RELAY
12
G
G
V-W
V-W
FUEL PUMP
BELAY
B-O
B-O
B-O
SA IGN
B-R
B-R
ECU
B-O
7. SA IGN
IGNITER
<3-4>
(-1)
<3-4>
(-1)
MUSLED
(-1)
MUSLED
(-1)
BR
B-O
(-1)
MAL FUNCTION INDICATOR LAMP
(MANUAL ENGINE WARNING LIGHT)
TH
L-R
L-R
B-O
B-O
L-l
5
W-B
5
BR
BR
W-B
R-L
B-O
(From ABS ECU
<1-9-2>)
(From Igniter
<2-4>)
From ABS-ECU
ECU Sensor <1-3-5>
From <A6>
From <1-3-5>
From <1-3-5>
From <1-2-5>
From <1-3-5>
From <1-2-5>
From <1-3-5>
From ABS-ECU <1-5>
6
7. SA IGN
(Cont. next page)
BEAFT
(-1)
Rear speaker
Right
Rear speaker
Left
BR
BR