
100%
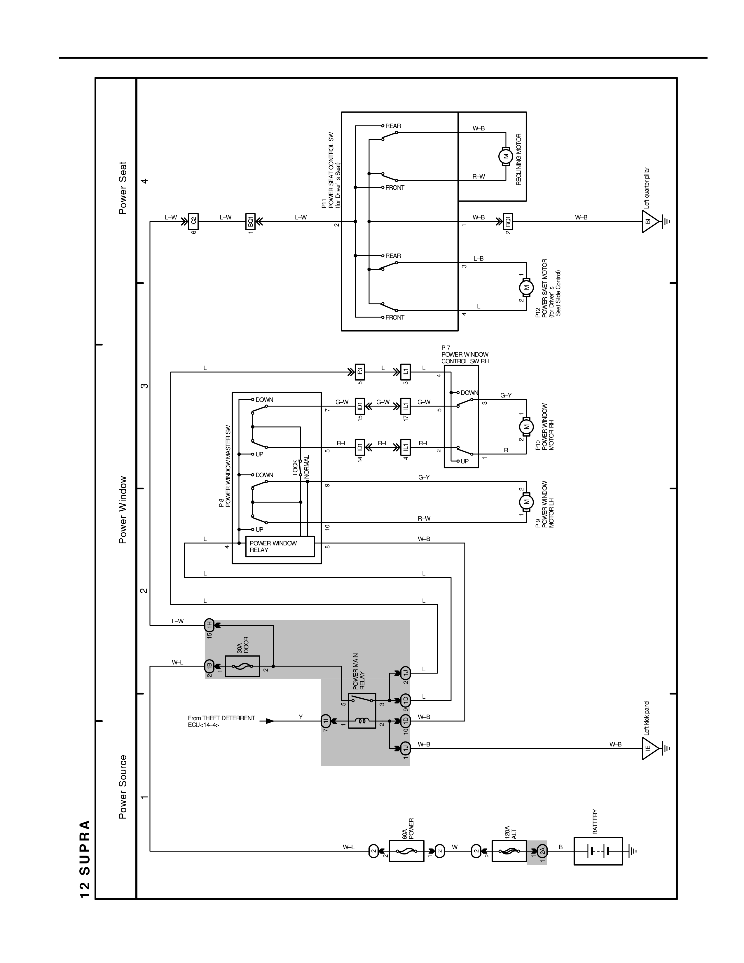
12 SUPRA
Power Source
1
W-L POWER W CCA B BATTERY
2
L-W W-L DOOR LOCK RELAY
From THEFT DETERRENT ECU-I4-4c Y L W-B W-B W-B AM radio speaker
Power Window
2
L L L
R-W W-B
DOWN UP POWER WINDOW RELAY
3
DOWN POWER WINDOW MASTER SW
L
L L
G-W R-L G-W R-L G-W R-L
P7 POWER WINDOW CONTROL SW RH MOTOR RH
G-Y R-W R G-Y R POWER WINDOW MOTOR RH
R-W POWER WINDOW MOTOR LH
Power Seat
4
L-W L-W L-W
P10 POWER SEAT CONTROL SW
REAR FRONT
REAR FRONT
W-B R-W RECLINING MOTOR
L-B L POWER SEAT MOTOR (Except Canada)
P4
W-B W-B AM radio speaker