
100%
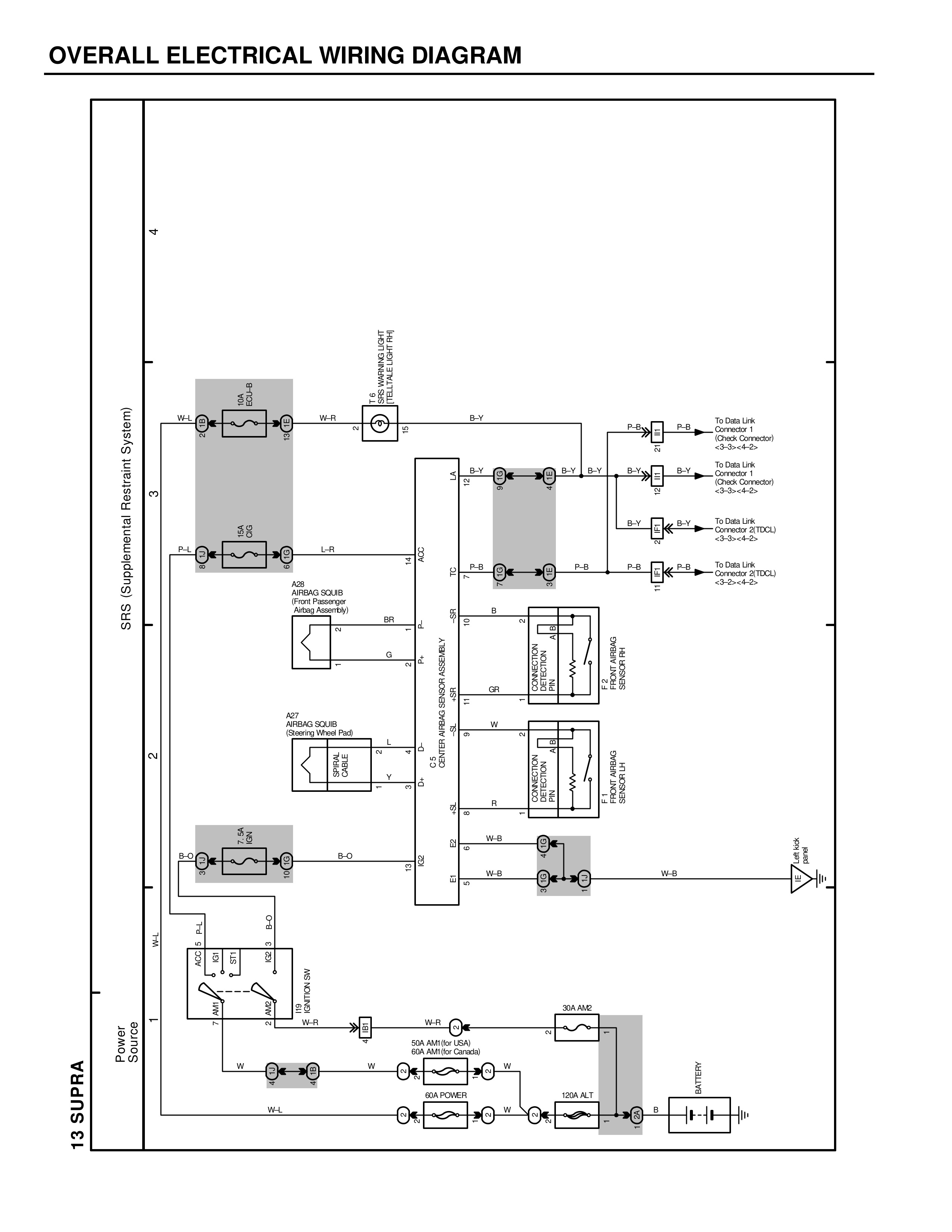
OVERALL ELECTRICAL WIRING DIAGRAM
13 SUPRA
Power Source
SRS (Supplemental Restraint System)
4
3
2
1
B-O
L-R
W-R
B-Y
B
R
W
W-B
W-B
W-B
W-B
W-B
W
W
W-L
W-R
W-R
B-Y
B-Y
B-Y
B-Y
R-B
R-B
R-B
R-B
P-B
P-B
P-B
P-B
L-W
L
L
BR
G
Y
GR1
W
R
B-O
W-L
IG1
IG2
AM1
AM2
BATT
ST
ECU-B
AM1
BAT
ACC
FRONT AIRBAG SENSOR RH
FRONT AIRBAG SENSOR LH
CENTER AIRBAG SENSOR ASSY
CONNECTOR (For Diagnosis)
CONNECTOR (For Diagnosis)
A28 AIRBAG SQ LIB (Front Passenger Seat)
A27 AIRBAG SQ LIB (Steering Wheel Pad)
SIDE AIRBAG ASSY
SPIRAL CABLE SUB-ASSY
STARTING SYSTEM DIAGNOSIS
IGNITION SWITCH
BATTERY
50A AMR (USA)
60A AMR (Canada)
60A POWER
120A ALT
30A AMG
To Data Link Connector 1 (Check Connector) <3-3>+4-2>
To Data Link Connector 1 (TCL) <3-3>+4-2>
To Data Link Connector 2 (TCL) <3-3>+4-2>
To Data Link Connector 2 (TOOL) <3-3>+4-2>