
100%
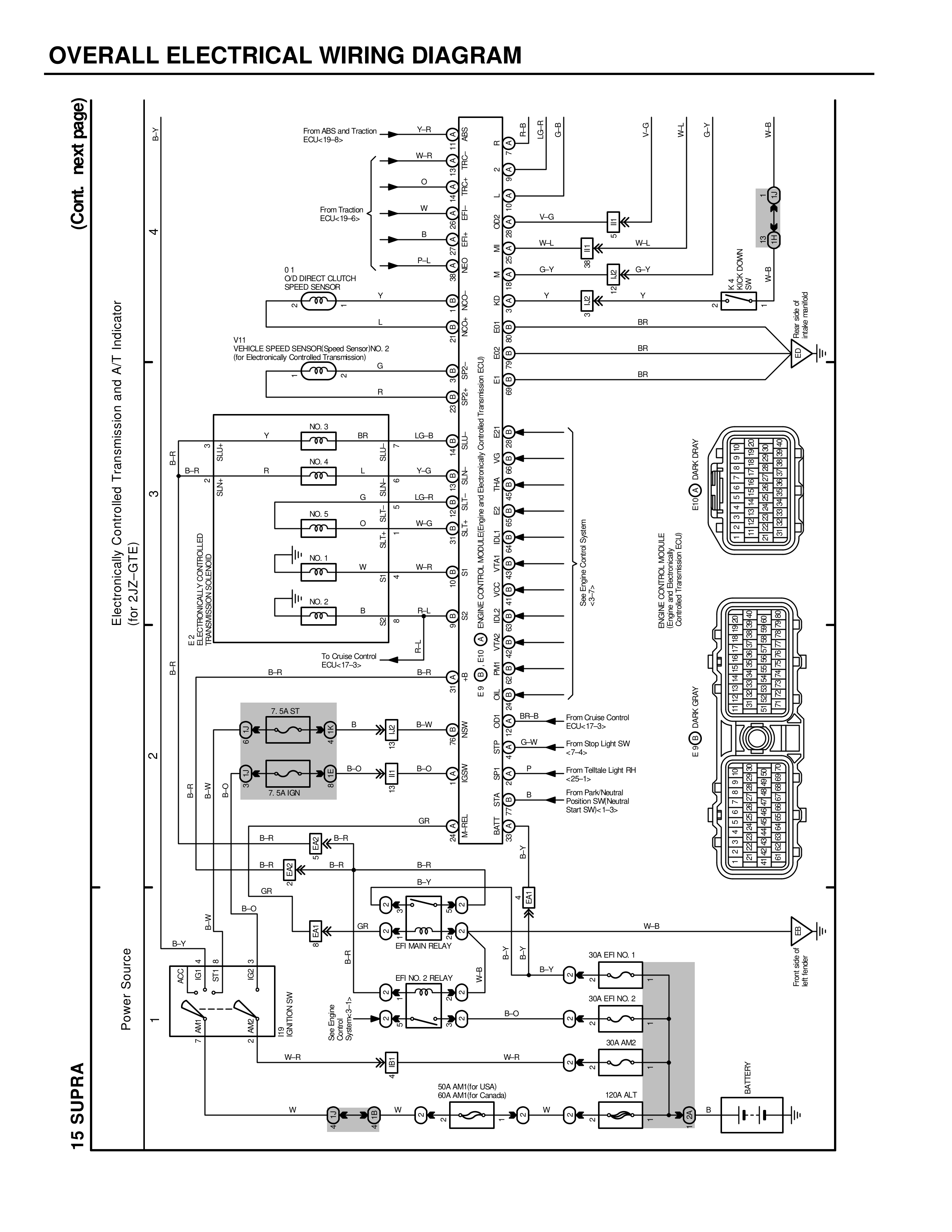
15 SUPRA
Power Source
1
BATTERY SW
ST
30
50
W-R
W-R
W-R
W
W
W
W
50A AM1(for USA)
60A AM1(for Canada)
100A ALT
30A AM2
30A EFI NO. 2
B-O
30A EFI NO. 1
B-Y
30A EFI NO. 1
EFI MAIN RELAY
EFI MAIN RELAY 2
B-O
B-Y
GR
B-O
BW
2
7.5A ST
B
B
B-W
B-R
B-R
B-R
B-R
To Cruise Control
ECU-17-3>
B-R
ST
B
Electronically Controlled Transmission and A/T Indicator
(for 2JZ-GTE)
3
NO. 1
NO. 2
W
W
W-R
B-R
B
R
R
R
NO. 4
B-R
L
Lo-R
Y-G
SUB
SUB
2
3
Y
NO. 3
BR
Lo-R
3
SUB
SUB
NO. 5
G
G
Lo-R
O
W
W-G
ELECTRONICALLY CONTROLLED
TRANSMISSION SOLENOID
NO. 6
W
W-R
B-R
B-Y
GR
B-O
B-O
BW
7.5A IGN
4
From ABS and Traction
ECU-17-8>
Y-B
W-R
From Traction
ECU-17-8>
W
B
P-L
O 1
ON DIRECT CLUTCH
SPEED SENSOR
Y
L
V11
VEHICLE SPEED SENSOR(Speed Sensor NO. 2
Electrically Controlled Transmission)
G
R
No Connector System
Speed Sensor
(Cont. next page)
B
BR-B
G-W
P
B
BR-B
From Cruise Control
ECU-17-3>
From Stop Light SW
E4-1>
From Taillight SW
E5-1>
From Park Neutral
Position SW(Neutral
Start SW) V-7>
GR
B-R
B-R
B
GR
5
V-G
W-L
G-Y
Y
BR
BR
BR
V-G
W-L
G-Y
Y
Electronic Controlled Transmission ECU
Electric Controlled Transmission and A/T Indicator
(Cont. next page)
L-B
W-L
G-L
W-B
DOWN
S/P
OD
M-B
Series Code(ref.)
W-B
ECM J/B3
EDM J/B2
ECM J/B2
CONTROL MODULAR
(Combined Transmission ECU)
ECM J/B1
From Ignition
SW W-R(ref.)
W-B
1