
100%
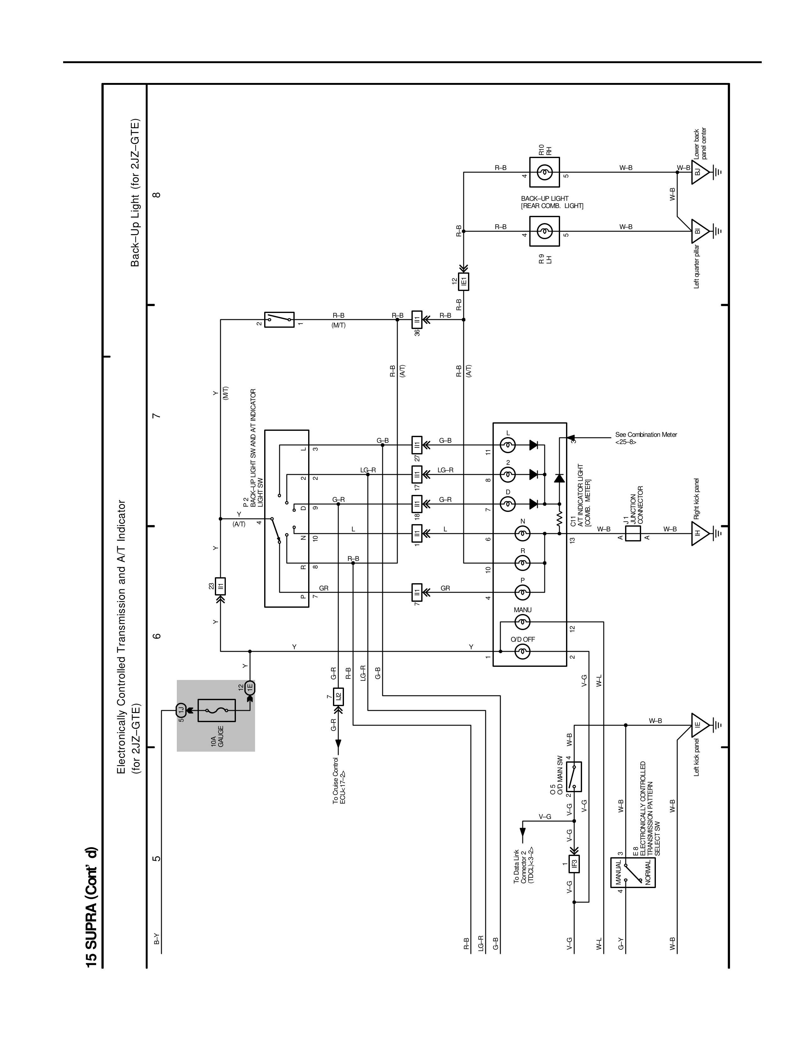
15 SUPRA (Cont' d)
Electronically Controlled Transmission and A/T Indicator
for 2JZ-GTE
5
6
7
8
Back-Up Light (for 2JZ-GTE)
B-B
MANUAL
TRANSAXLE
V-G
V-G
V-G
V-G
Throttle
Position
Sensor
(TDC-2-3)
ELECTRONICALLY CONTROLLED
TRANSMISSION PATTERN
SELECT SWITCH
V-G
V-G
C-V
M-B
V-L
V-G
W-L
O/D Main
S.W.
Torque Converter
ECO-D-2-3
V
V
V
V
G-B
IG-R
G-R
L
GR
Y
G-B
V
V
Y
G-B
IG-R
G-R
L
R-W
GR
G
G-B
P-2
BACK-UP LIGHT SWITCH A/T INDICATOR
V-(W)
(A/T)
G-B
IG-R
G-R
L
GR
Y
No. 1 Junction
Block
R-B
(M/T)
R-B
R-B
R-B
R-B
B-B
V(V)
B-B
V(Y)
See Combination Meter
<25-3>
A/T POSITION
INDICATOR
A/T SOLENOID
VALVE
W-B
W-B
MAN
O/D OFF
D3
D2
V-G
V-L
Left Hazard Lamp
M-B
R-B
B-B
W-B
M-B
R-B
B-B
W-B
R-B
FR
H2 L1
BACK-UP LIGHT
(REAR COMBI. LIGHT)
W-B
V-G
Left Hazard Lamp
M-B