
100%
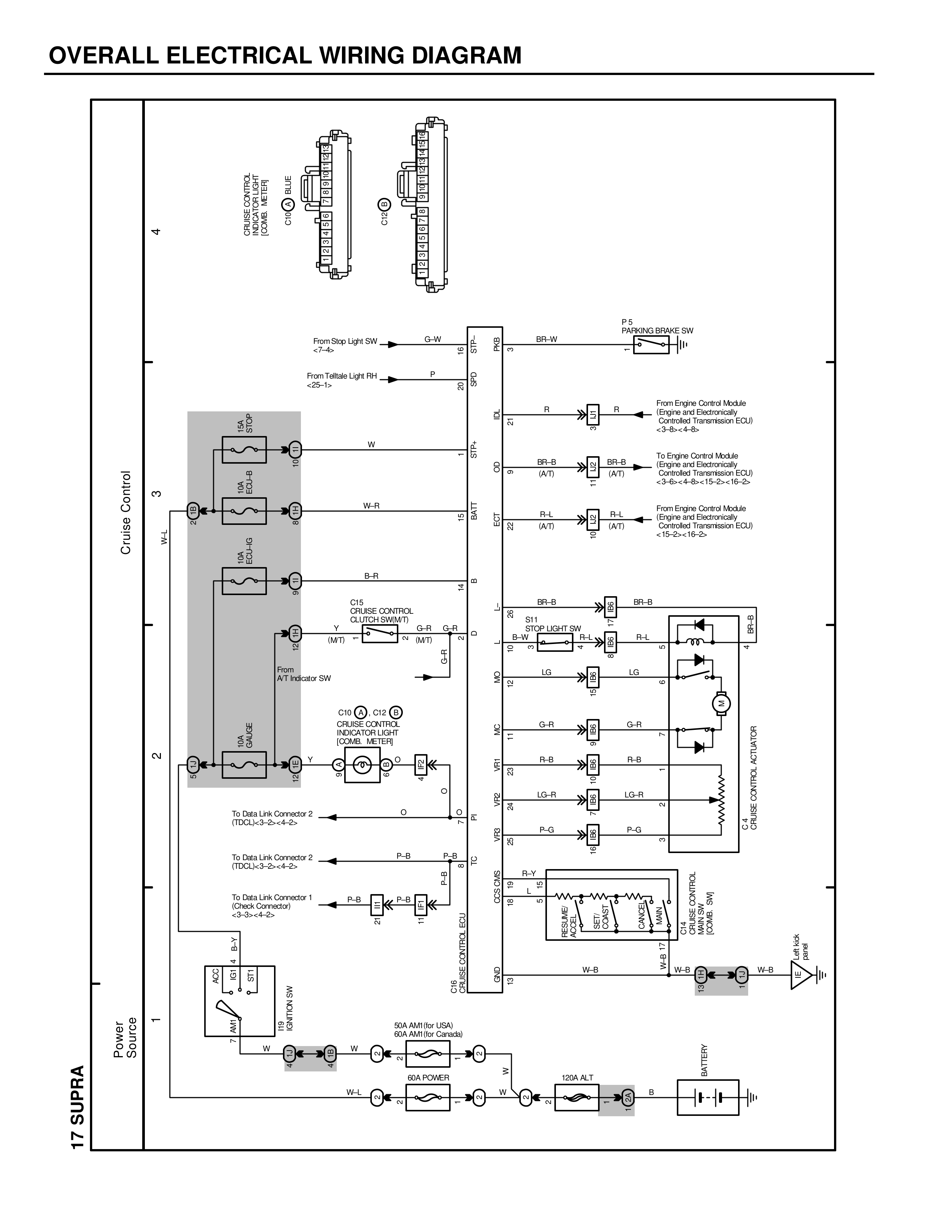
OVERALL ELECTRICAL WIRING DIAGRAM
'17 SUPRA
Power Source
1
W
IGNITION SW
C2
C1
1
2
AM1
W
80A AM1/IG (USA)
60A AM1/IG (Canada)
W-L
W
80A POWER
W
130A ALT
W
B
BATTERY
2
Cruise Control
3
STOP
LIGHT
LG/LS
SOL-IG
B-Y/L
BLUE
LGLS
From A/T Indicator SW
CHASE CONTROL INDICATOR LIGHT
TDDLE METER
Y
(M/T)
W-R
B-R
D14
CRUISE CONTROL
CLUTCH SWITCH
G-R
G-R
O
O
CH2 O
CH1 O
To Data Link Connector 3
(TDCL)-3-<2>+4-5>
To Data Link Connector 2
(TDCL)-3-<2>-<4-5>
P-B
P-B
To Data Link Connector 1
(Check Connector)
(TDCL)-3-4>
P-B
P-B
4
CHASE CONTROL
ECU/IDLE MODULE
(M/T)
CH1
CRUISE CONTROL ECU
From Stop Light SW
<7-4>
From Tailate Light RH
<25-1>
G-W
P
BR-W
W
W-R
B-R
32
13
22
24
P-5
PARKING BRAKE SW
R
R
5
BR-B
(A/T)
BR-B
(A/T)
10
R-L
(A/T)
R-L
(A/T)
3
BR-B
BR-B
From Engine Control Module
(Engine and Electronically
Controlled Transmission ECU)
<3-8><-4-8>
To Engine Control Module
(Engine and Electronically
Controled Transmission ECU)
<3-6><-4-8><-15-2><-16-2>
From Engine Control Module
(Engine and Electronically
Controlled Transmission ECU)
<15-2><-16-2>
19
STO
P
B-W L-G LT.SW
R-L
4
LG
LG
G-R
G-R
R-B
R-B
LG-R
LG-R
P-G
P-G
B-Y
Position
SW
BLOW
SOL
Control
SOL
CHASE CONTROL
ACTUATOR 4-cylinder
M2
W-B
W-B
W-B
W-B
BATTER