
100%
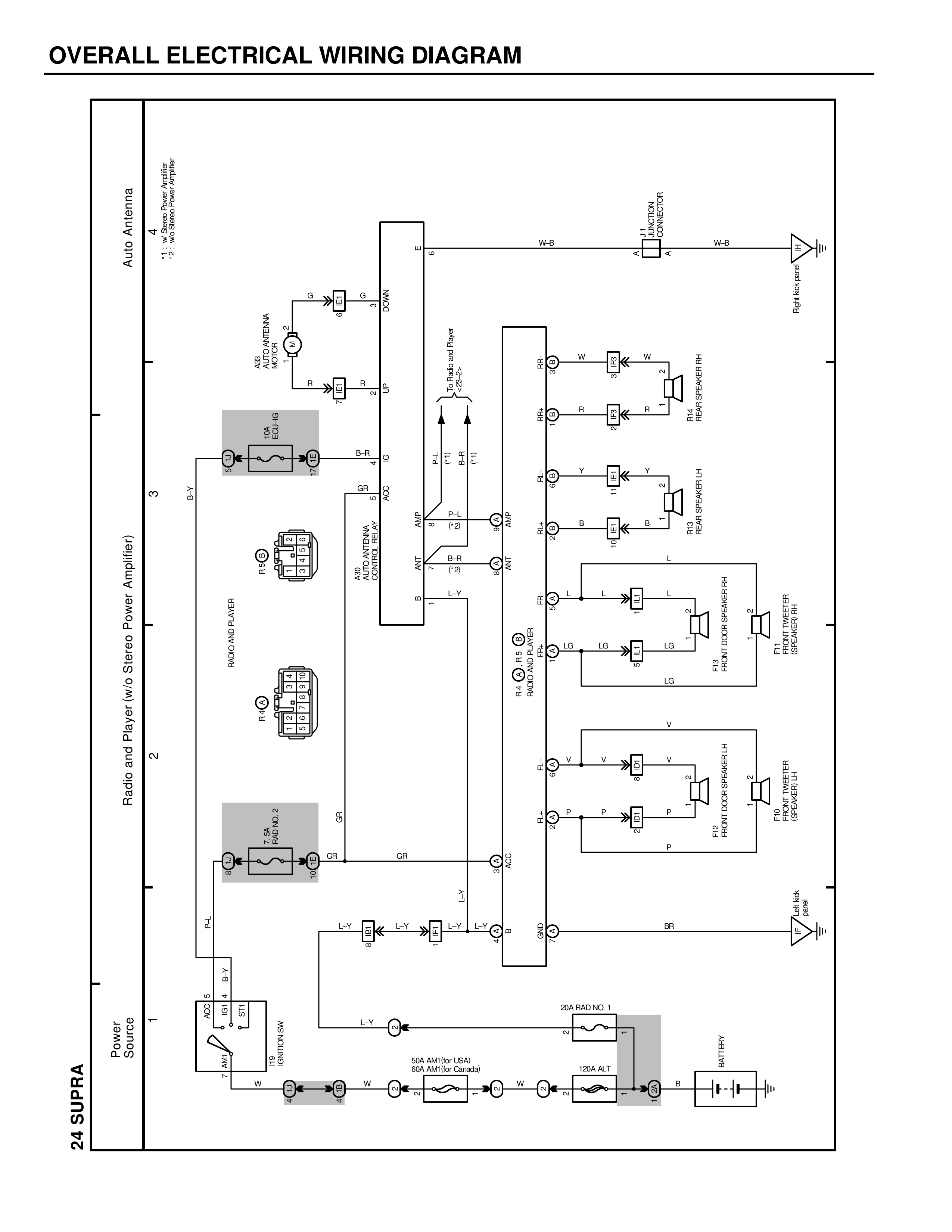
OVERALL ELECTRICAL WIRING DIAGRAM
24 SUPRA
Power Source
1
2
3
Radio and Player w/o Stereo Power Amplifier
Auto Antenna
DC12
IG1
ACC
BATT
ILL
SATURN SW
L-Y
W
L-Y
50A AM1(for USA)
60A AM1(for Canada)
120A ALT
W
W
B
BATTERY
AM RAD NO. 1
RADIO AND PLAYER
SOUND
B-R
GR
B
B-Y
3
RK NO.2
AUTO ANTENNA
MOTOR
G
G
B
DC12V
R
R
SOUND
+B
+
-
GR
-
ILL
+
BP
+
P-L
BL
+
-AE
L-Y
B
RADIO NO.1 RELAY
P-L
IG
B
+B
IL-B
AE
L-Y
ACCIG
BATT
+B
L-Y
L-Y
L-Y
L-Y
IG
IG
IG
R
R
Y
B
L
LG
LG
LG
AM (24V x 6)
SATELLITE
RADIO NO.1
R
W
R
Y
B
L
LG
RELAY DOOR SPEAKER RH
FRONT DOOR SPEAKER LH
FRONT TWEETER
SPEAKER RH
FRONT TWEETER
SPEAKER LH
REAR DOOR SPEAKER RH
REAR DOOR SPEAKER LH
V
V
V
P
P
P
REAR
BR
RADIO ANTENNA
EXT
FM/AM 2/D0
CASS
LAMPDEF/LA
W-B
W-B
Right Rear
Speaker
+B