
100%
2A SUPRA
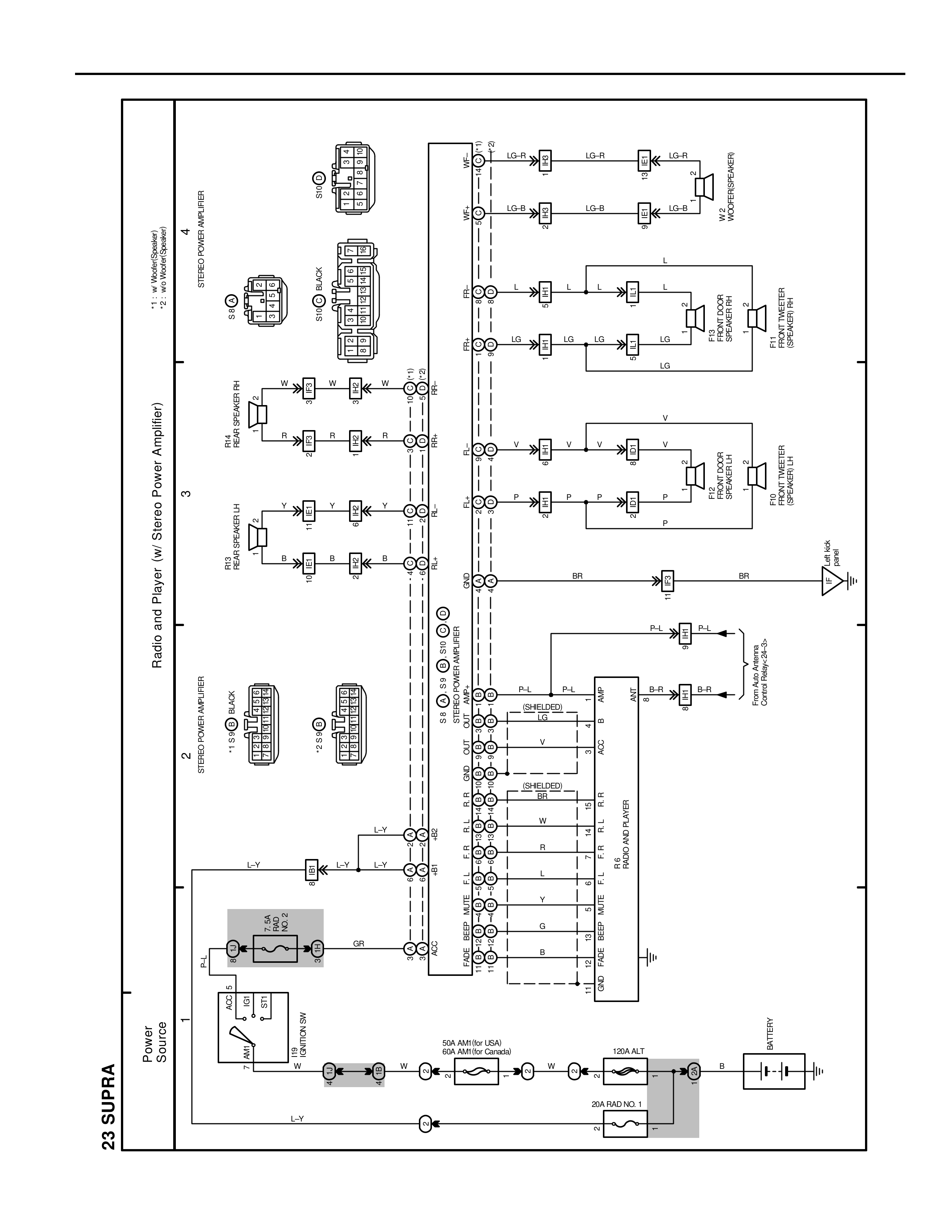
Power Source
1
ACC
IG2
B
ST
7 BATTERY SW
W
B
W
B
L-Y
50A AM1(for USA)
60A AM1(for Canada)
GR
St 32
E01
E2
L-Y
L-Y
P-L
B2 L
MAG CASS
RADIO
L-Y
L-Y
St 33
GR
120A ALT
St 34
B
20A RAD NO. 1
St 35
2
STEREO POWER AMPLIFIER
LG-CK
LG
3
R51 St 34 AMP1
R
R51 St 34 AMP1
R
R51 St 34 AMP2
R
W
W
W
V
V
R
R
R2
R2
R2
R2
RADIO PLAYER
R4 St A/C St 23 & St 24
(SHIELDED)
P-L
(SHIELDED)
BR
St A/C St 23 & St 24
Big G
Big O
Big C
R3
R3
St A/C St 23 & St 24
CONTROL MAIN BODY
V
W
R
L
Y
G
B
R4
R4
R4
R4
R4
R4
R4
R4
R4
R51
R51
R51
R51
R51
R51
R51
R51
R51
SEE PAGE: B-2 RADIO PLAYER
DASHBOARD
BR
P-L
P-WAV
BLU
LG-B
LG-B
LG-B
LG-B
LG-B
LG-B
P-L
BLU
BLU
BLR
R3
R3
R3
R3
R3
R3
L
L
L
LG
LG
LG
LG
V
V
V
P
P
P
R3
R3
BR
P-L
P-L
R3
BLR
R3
No.2
REAR DOOR
SPEAKER
+
FRONT TWEETER
SPEAKER RR
+
FRONT DOOR
SPEAKER
+
FRONT DOOR
SPEAKER
+
FRONT TWEETER
SPEAKER LH
DOOR FR SPEAKER
4
STEREO POWER AMPLIFIER
St A/C
LG-CK
St A/C
St A/C
BATTERY