← p.037
OWD/Overall Electrical Wiring Diagram38 / 38

100%
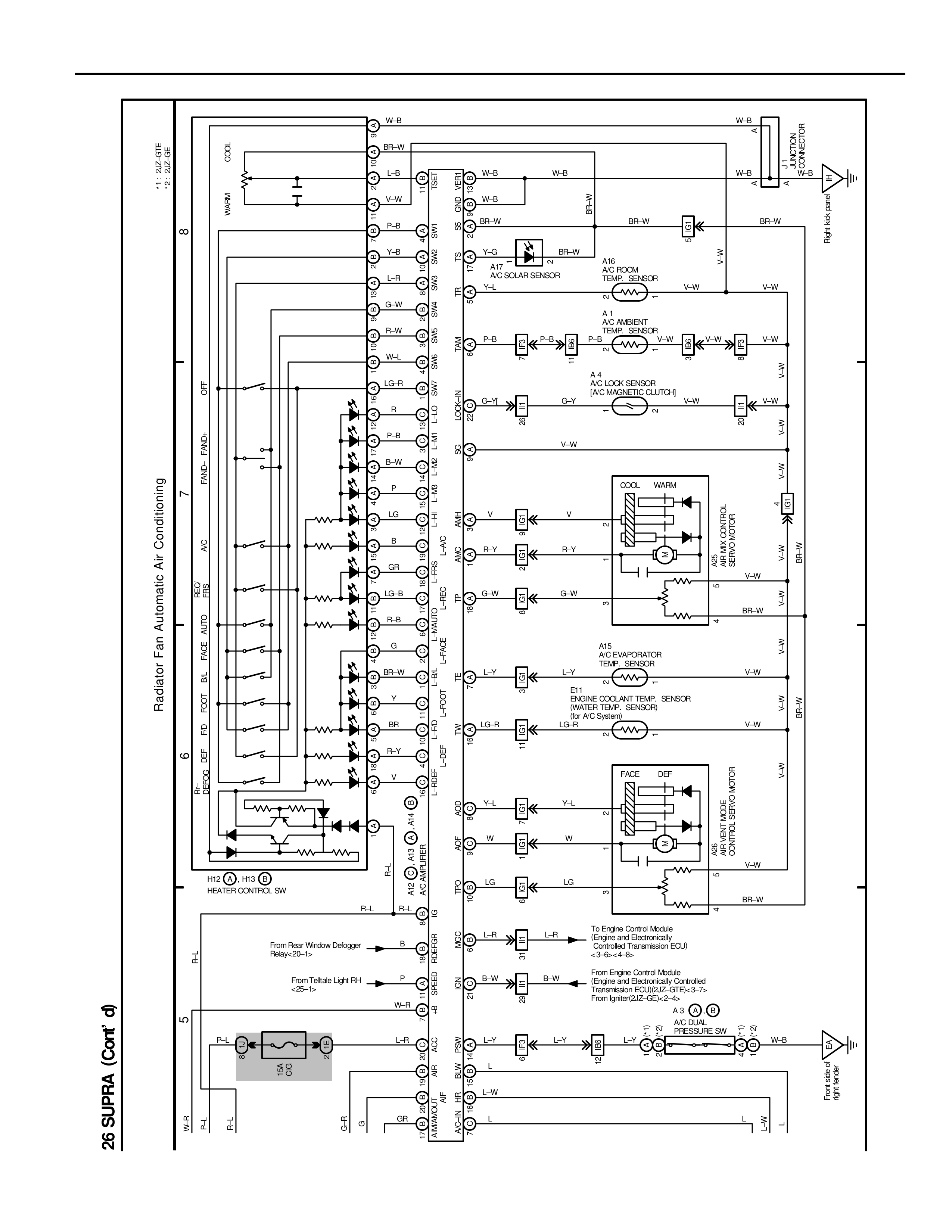
26 SUPRA (Cont. d)
Radiator Fan, Automatic Air Conditioning
HOT AT ALL TIMES
FUSE 50A
BAT
HOT IN ON OR START
FUSE 7.5A
IG
W-B
BR-W
L-B
V-W
P-B
L-R
L-R
B-W
R-W
W-L
P-B
B-W
P
LG
B
GR
LG-B
R-B
B
BR-W
Y
BR
B-Y
Y
NO.1 HTR
HEATER CONTROL SW.
R-L
From Rear Window Defogger
Relay->0-1>
From Tailgate Light RH
<3E-1>
A/C
FUSE 50A/40A
FAN
FUSE 10A/10A
OFF
GY
FUSE 10A/10A
FUSE 10A/10A
FUSE 10A/10A
FUSE 10A/10A
A/C
FUSE 10A/10A
PRES
MUTE
BL
ECON GAS
AUTO
FACE AUX
DEF
FACE DEF
COOL GF
MAX A/C SW.
W-B
P-L
L-R
BR
L-W
L
BR
CLGLGH
G
BR
AIR MIX CONT.
SOLENOID
WARM
W-B
BR-W
L-B
V-W
P-B
L-R
L-R
B-W
R-W
W-L
P-B
B-W
P
LG
B
GR
LG-B
R-B
B
BR-W
Y
BR
B-Y
Y
MAX A/C
R-L
R-L
DEF
W-L
L-R
BR
IF
AC AMP.
L-W
L
HOT IN ON OR START
W-B
W-B
BR-W
BR-W
V-W
Y-G
BR-W
Y-L
P-B
G-Y
G-Y
V-W
V-W
Y
R-Y
G-W
L-W
LG-R
Y-L
W
LG
L-R
B-W
L-Y
L-W
L
BR-W
V-W
A17
DUAL SOLAR SENSOR
A1
ROOM
AMBIENT TEMP. SENSOR
A4
A/C LOCK SENSOR
(A/C MAGNETIC CLUTCH)
COOL
WARM
AIR MIX CONT.
SERVO MOTOR
A15
EVAPORATOR
TEMP. SENSOR
E11
ECON GAS TEMP. SENSOR
(WATER TEMP. SENSOR)
by A/C System.
FACE
DEF
AIR OUTLET
MODE CONT.
SERVO MOTOR
To Engine Control Module
(Engine and Electronically
Controlled Transmission ECU)
<3-B; 4-B>
From Engine Control Module
(Engine and Electronically Controlled
Transmission ECU)<3/22-C; 3/23-C>
From Ignition<2/2-C;E>-3>
A3
A/C POS.F
C-CONTROL SW.
L-Y
B-W
Fan relay and sensor
right mirror
RELAY CONTROL
BOX
(A/C CONDENSOR
FAN ECU)
W-B