
100%
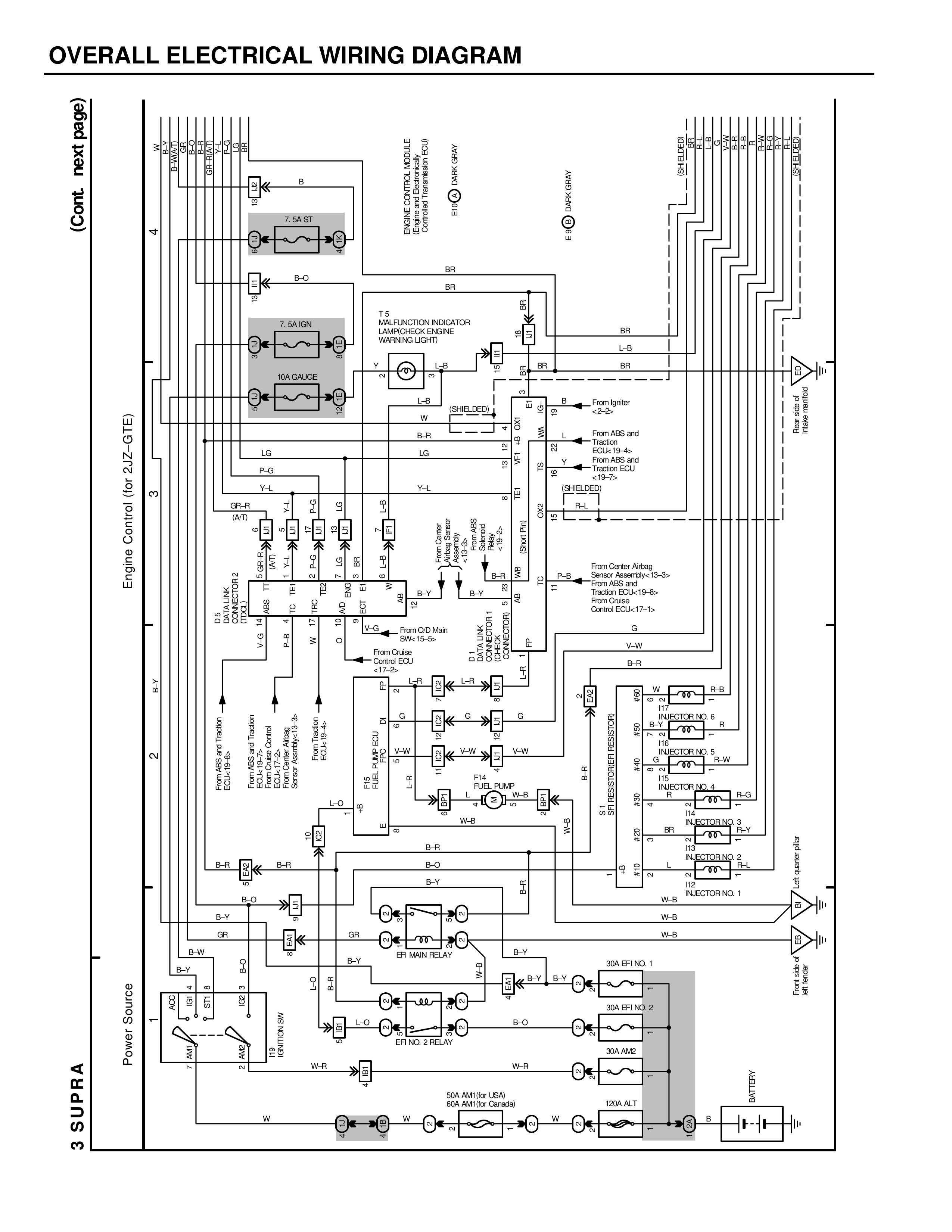
OVERALL ELECTRICAL WIRING DIAGRAM
(Cont. next page)
Engine Control (for 2JZ-GTE)
3 SUPRA
Power Source
AM2
ALT
EFI
IG SW
IGCT
7
2
IGN SW
IGN SW
K
B
7.5A ST
B-O
BR
K
BR
7.5A IGN
T.R.
LAMP/CHECK ENGINE
WARNING LIGHT
BR
L-B
BR
10A GAUGE
L-B
BR
From Igniter
IG-3>
L-B
L-B
(SHIELDED)
W
From ABS and
Traction
ECU-19-8>
B-R
B
From ABS and
Traction ECU
LG
LG
<19-7>
P-G
(SHIELDED)
R-L
Y-L
Y-L
OR-R
IG
CT
CT
(AT)
LG
LG
O
P-B
From Crank Angle
Sensor Assembly<13-3>
B-O
B-R
ENGINE CONTROL MODULE
(Engine Control Module)
Refer to GROUP INJECTION ENGINE)
DLC3
E2G
SIL
O
R
CT
BR
BR
From A/T
Traction ECU-19-8>
From Crank Angle
Sensor Assembly<13-3>
NE
TE1
IG
Ym
VC
VF
G
G2
TH
B
TH
TH
B-Y
B-Y
Traction ECU-19-8>
From O/D>4
Main SW<15-5>
L-G
E1
E2
EW
DLC1
OX1
OX1
MAF METER
ECT
MAF
(A/F
Sensor)
From Cruise
Control ECU
ECU No 18<
L-B
L-R
(A/F
Sensor)
L-R
From Igniter
ECU No 15<
ECU No 10
G
From ETCS
Throttle Control
Motor<13-4>
From ECT
Sensor<13-1>
From Knock Sensor
G
G
ECU No 17<
G
V-W
From Intake Air Temp
Sensor<13-1>
B-R
W
B-R
R
IN
R
INJECTION NO. 6
B-R
STI PRESSURE
L-B
BR
R-W
IN
R
INJECTION NO. 5
R-W
BR
P-R type ECU
V-W
V-W
V-W
R
IN
INJECTION NO. 4
R-G
FH4
BR
L-R
W-B
L-O
W-B
BR
R
IN
INJECTION NO. 3
B-Y
BR
SR
W-B
B-R
R
IN
INJECTION NO. 2
B-R
B-R
B-O
B-Y
For 2JZ-GTE only
For JZA80 except JZA
W
R
IN
INJECTION NO. 1
B-O
W-B
B-Y
GR
GR
W-B
W-B
B-W
B-Y
EFI MAIN RELAY
B-Y
30A EFI NO. 1
O
B-R
B-Y
B-Y
L-O
B-O
30A EFI NO. 2
EFI NO. 2 RELAY
W-R
W-R
30A AM2
BATTERY
60A AM1(for USA)
80A AM1(for Canada)
W
W
120A ALT
B