
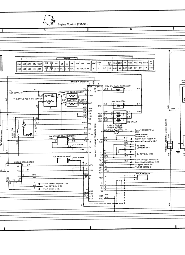
Engine Control (7M-GE)
5 6
[ECU PIN CONNECTOR DIAGRAM showing pins labeled:
Top row: E01-E29 with labels including PC, PC, O, C1, BT, OT, O2, M, SPD, IGT, THO, E2, VF1, NSW, OX1, IGF, V-, VB, FP, THG, VS, VC, BAT1, GR
Bottom row: E02-E30 with labels including E02, A/D, EGD, E1, BT, V+, C2, V/1, TE1, VTA, D1, THW, O2S, KNK, E2, L1, L2, L3, A/C, W, IGF, EG1, L4, SYS, #1, #3]
NAFT BY GATE 1
To ECU (5-4)
THROTTLE POSITION SENSOR
EFI WATER TEMP SENSOR
AIR FLOW SENSOR
COLD START INJECTOR
CIRCUIT OPENING RELAY
GAUGE Fuse (7-10)
VSV (For EGR)
Inlet Air Control
ISC VALVE
COME SWITCH
(For ETCS)
VSV
INJ (Engine Relay)
Speed Sensor
(2-11)
To ECU
To Data Link Connector (3-7)
KNOCK SENSOR
OX SENSOR (Main)
OX SENSOR (Sub,California)
CHECK CONNECTOR
From TEMS Computer (3-7)
From EFI ECU (2-4)
From Igniter (1-7)
From "IGN" Fuse (1-7)
From A/C Amplifier (5-7)
GNI Tank
To Main Relay (2-4)
To A/C Amplifier (5-7)
To Speed Sensor (2-11)
To EFI ECU (2-6)
To Diagnosis Relay (2-4)
To ECU ECU (2-14)
BLG
B/O