
100%
4 TOYOTA SUPRA (Cont'd)
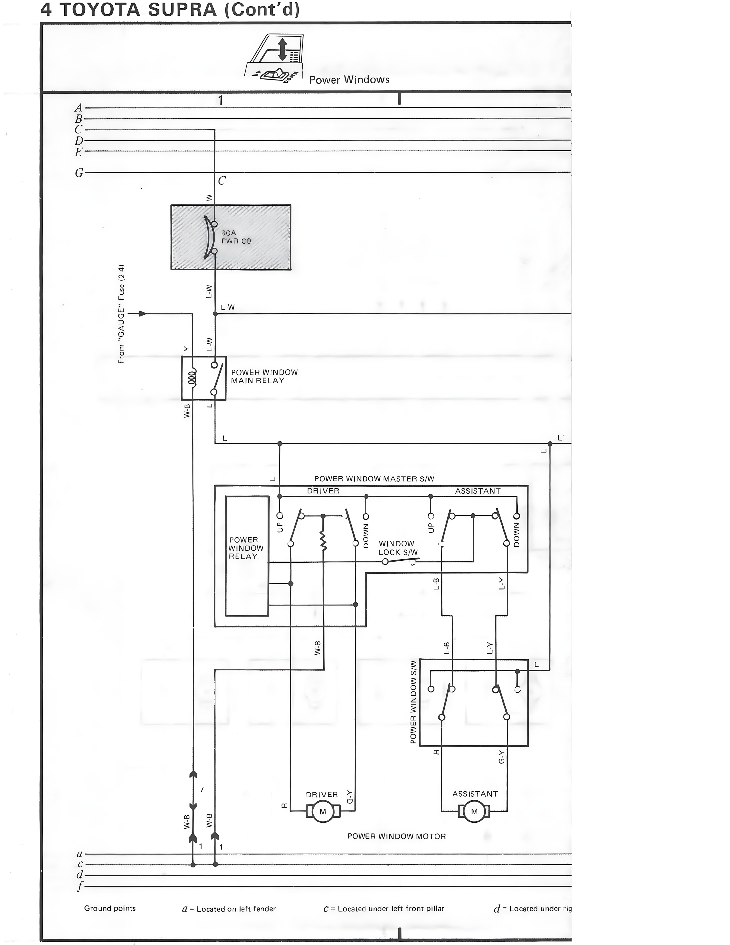
Power Windows
A
B
C
D
E
G
1
C
W
30A
PWR CB
L-W
L-W
From *GAUGE* fuse (2.4)
L-W
POWER WINDOW
MAIN RELAY
W-B
L
L
L
POWER WINDOW MASTER S/W
DRIVER
ASSISTANT
UP
DOWN
UP
DOWN
POWER
WINDOW
RELAY
WINDOW
LOCK S/W
L-B
L-Y
W-B
L-B
L-Y
POWER WINDOW S/W
R
G-L
DRIVER
ASSISTANT
R
G-Y
M
M
W-B
W-B
POWER WINDOW MOTOR
a
c
d
f
Ground points
a = Located on left fender
C = Located under left front pillar
d = Located under rig