
100%
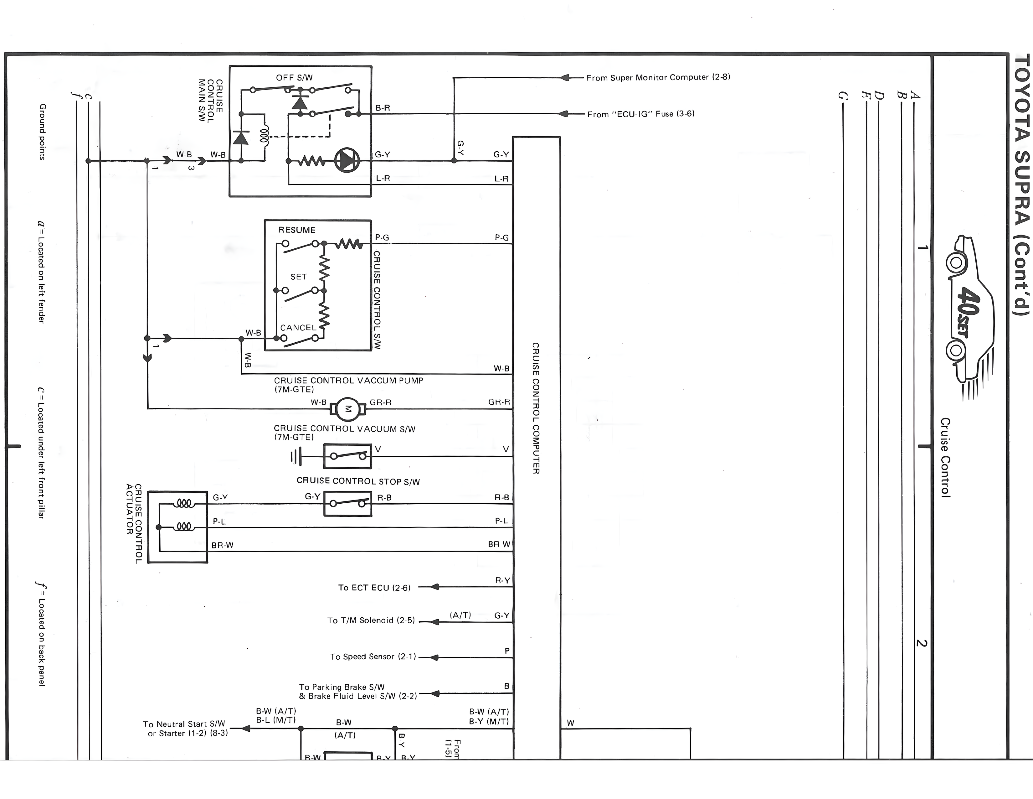
TOYOTA SUPRA (Cont'd)
Cruise Control
From Super Monitor Computer (2-8)
From "ECU-IG" Fuse (3-6)
OFF S/W
FUSE
CRUISE
CONTROL
10A
B-R
G-Y
L-R
G-Y
L-R
W-B
W-B
Ground point
3
W-B
RESUME
P-G
P-G
CRUISE CONTROL S/W
SET
W-B
CANCEL
W-B
CRUISE CONTROL COMPUTER
W-B
CRUISE CONTROL VACCUM PUMP
(7M-GTE)
W-B
GR-R
GR-R
CRUISE CONTROL VACUUM S/W
(7M-GTE)
V
V
CRUISE CONTROL STOP S/W
G-Y
G-Y
R-B
R-B
CONTROL FOR
CT-BLACK
P-L
P-L
BR-W
BR-W
R-Y
To ECT ECU (2-6)
IA/TT
G-Y
To T/M Solenoid (2-5)
P
To Speed Sensor (2-1)
B
To Parking Brake S/W
& Brake Fluid Level S/W (2-2)
B-W (A/T)
B-W (A/T)
B-L (M/T)
B-Y (M/T)
To Neutral Start S/W
B-W
or Starter (1-2) (8-3)
(A/T)
B-Y
B-W
B-Y
B-Y
From
Fuse
(1-6)
W
47 Located on left fender
42 Located on left fender
C Located under left rear heater