
100%
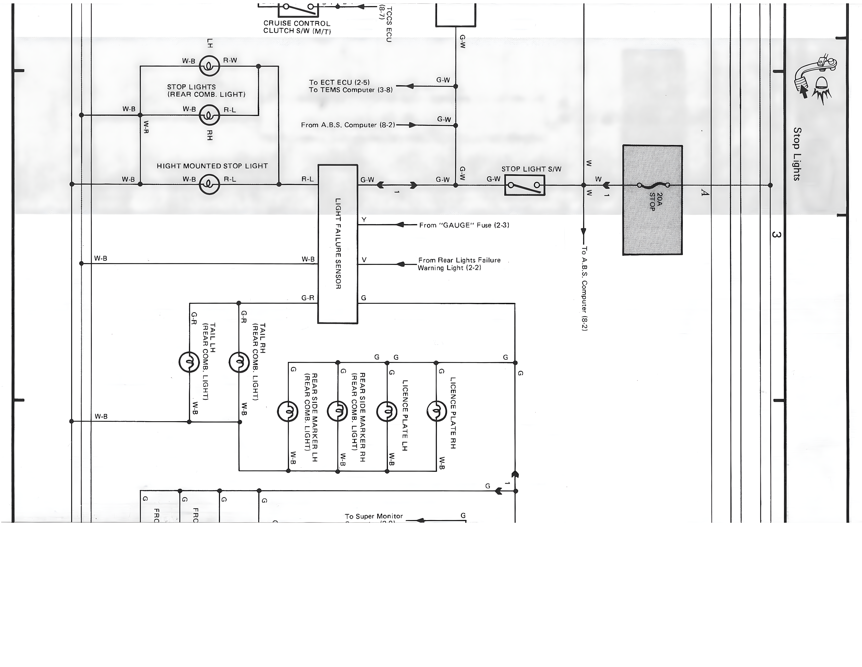
CRUISE CONTROL CLUTCH S/W (M/T)
To ECT ECU (2-5)
To TEMS Computer (3-8)
From A.B.S. Computer (8-2)
STOP LIGHTS (REAR COMB. LIGHT)
W-B
R-W
W-B
W-B
R-L
W-B
HIGHT MOUNTED STOP LIGHT
W-B
W-B
R-L
R-L
G-W
G-W
G-W
G-W
STOP LIGHT S/W
G-W
W
W
A-34
B-30 (STOP)
LIGHT/TAILFUSE/SENSOR
G-W
V
From "GAUGE" Fuse (2-3)
W-B
W-B
V
From Rear Lights Failure Warning Light (2-2)
To A.B.S Computer (8-2)
G-R
G
TAIL RH FRONT LIGHT
TAIL LH FRONT LIGHT
G-R
G-R
W-B
REAR STORAGE MARKER LIGHT LH
REAR STORAGE MARKER LIGHT RH
LICENSE PLATE LIGHT
LICENSE PLATE LIGHT
G
G
G
G
G
G
W-B
W-B
W-B
W-B
G
C-FR2
C-FR1
To Super Monitor
G