
100%
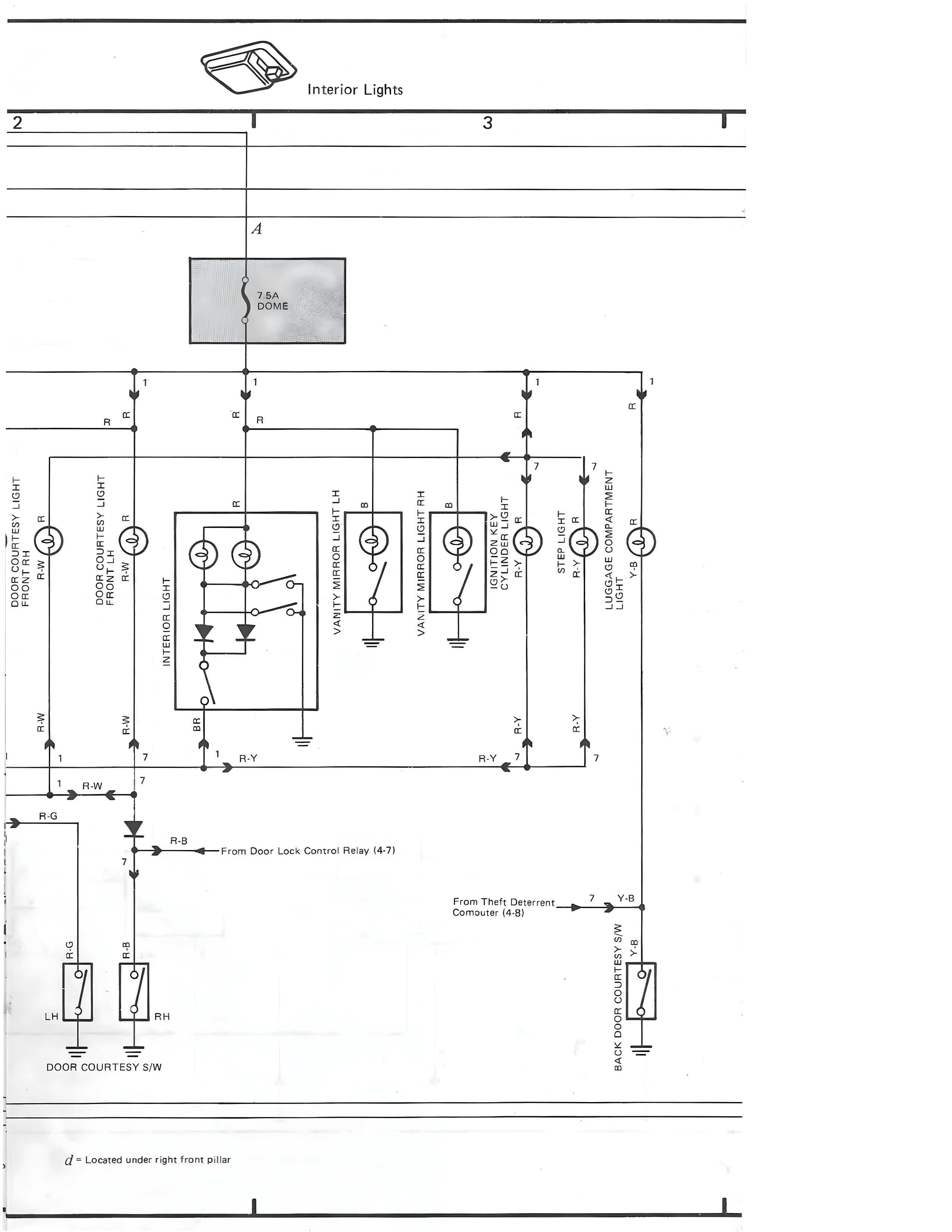
Interior Lights
2
3
A
7.5A
DOME
1
1
1
1
R
B
B
R
B
B
DOOR COURTESY LIGHT
FRONT LH
B-W
DOOR COURTESY LIGHT
FRONT RH
B-W
B
R
B
R
VANITY MIRROR LIGHT L.H
VANITY MIRROR LIGHT R.H
CONTINUATION OF
INDICATOR LIGHT
B-Y
STEP LIGHT
B-Y
LUGGAGE COMPARTMENT
LIGHT
B-B
INTERIOR LIGHT
7
7
B-W
B-W
R-Y
R-Y
B-Y
B-Y
1
7
7
1
R-W
R-G
R-B
From Door Lock Control Relay (4-7)
7
From Theft Deterrent
Computer (4-8)
Y-B
B-W
L-G
L-G
L-G
B-W
BACK DOOR COURTESY S/W
LH
RH
DOOR COURTESY S/W
d = Located under right front pillar