
100%
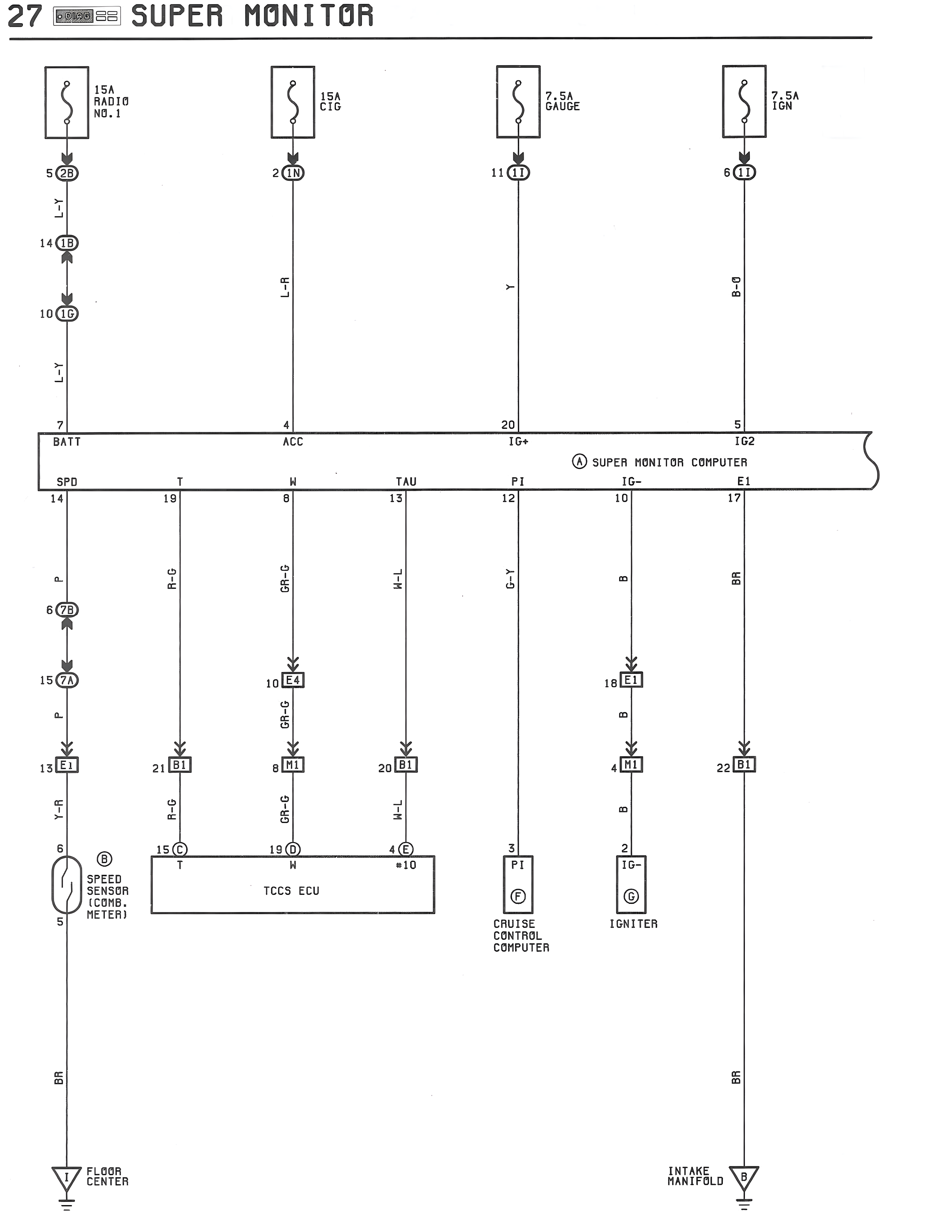
27 6-Man EG SUPER MONITOR
15A RADIO NO.1
15A CIG
7.5A GAUGE
7.5A IGN
5 2B
2 1N
11 I1
8 I1
I-1
I-T
Y
B-0
14 LB
10 L9
7 BATT
4 ACC
20 IG+
5 IG2
A SUPER MONITOR COMPUTER
SPD T W TAU PI IG- EI
14 18 8 13 12 10 17
P P+G GR+G W-L G-Y B BR
6 7B
15 7A
P
10 E4
GR+G
18 E1
B
13 E1
21 B1
8 D1
20 B1
4 D1
22 B1
P P+G GR+G W-L B BR
8 B SPEED SENSOR (COMB. METER)
5
15 C T
19 D W
4 C ●+IG
TCCS ECU
3 PI
C CRUISE CONTROL COMPUTER
2 IG-
C IGNITER
BR BR
FLOOR CENTER
INTAKE MANIFOLD