
100%
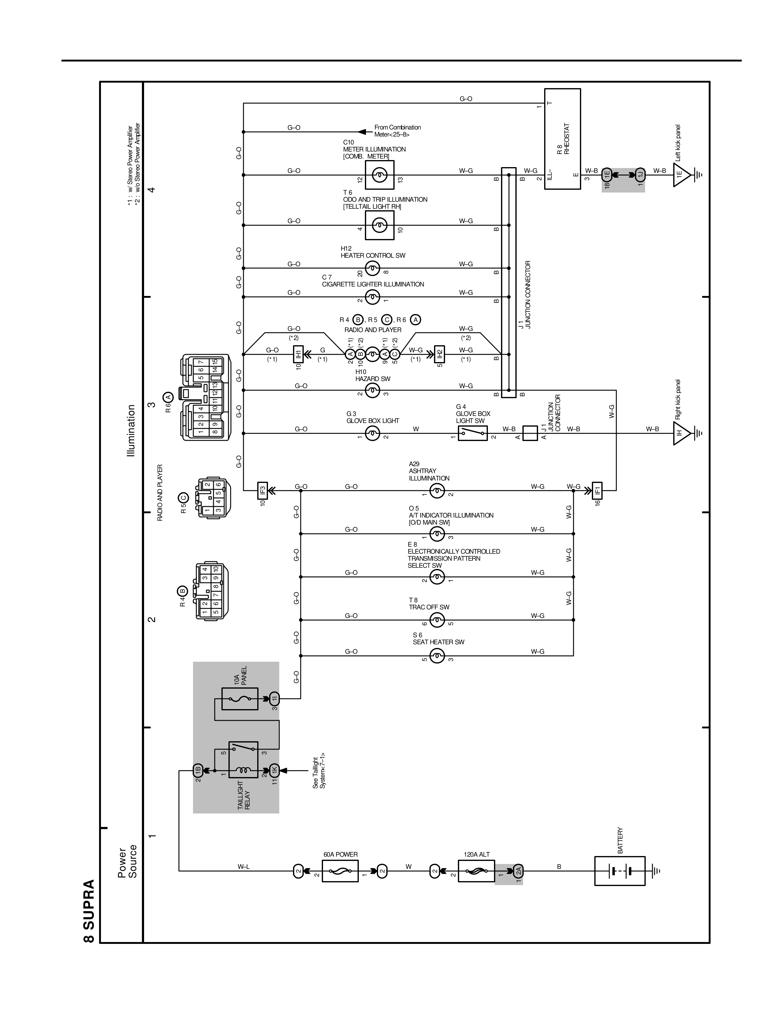
8 SUPRA
Power Source
1
Tail Light Relay
TAIL LIGHT RELAY
See Battery System
80A POWER
W-L → 21 → ∽ → W → 21 → 130A ALT → ∽ → B → BATTERY
2
H4 (D)
G-O
G-O
G-O
G-O
T8
TRAC OFF SW
40
W-G
S8
SEAT HEATER SW
22
W-G
E6
ELECTRONICALLY CONTROLLED TRANSMISSION PATTERN SELECT SW
17
W-G
C7
A/C INDICATOR ILLUMINATION
40D MAIN SW
20
W-G
A29
ASHTRAY ILLUMINATION
20
W-G → X
G-O
W-G
3
Illumination
READING LIGHT
H3 (I)
H5 (D)
G-O
G4
GLOVE BOX LIGHT
8W
G4
LUGGAGE COMPARTMENT
21
W-B → 12 → 5 → W-B → W-B
G-O
H10
HAZARD SW
27
W-G
G-O
G-O
(*1)
→ 18
G3
(*1)
R9 • R5 • H4 • G6 • G5 • G4
18
RADIO AND PLAYER
F2
27
G5
(*1)
W-G
F (*1)
W-G
(*3)
ILLUMINATION CONNECTOR
A
W-G
W-G
G-O
C7
CIGARETTE LIGHTER ILLUMINATION
24
W-G
G-O
H12
HEATER CONTROL SW
16
W-G
G-O
T6
ODO AND TRIP ILLUMINATION (TELL-TALE LIGHT P/A)
40
W-G
G-O
27
C10
METER ILLUMINATION COMBINATION METER
From Combination Meter (22, 8)
40
G-O
G-O
4
for VEHICLE WITHOUT RIGHT SIDE AIRBAG
RB RHEOSTAT
W-G
W-B
72 → W-B
W-B
ILLUMINATION CONNECTOR
27
T-CLO
A → X → G
ILLUMINATION CONNECTOR
13
W-B
W-B
LOCATION OF CONNECTOR
A
MAG
MAG