
100%
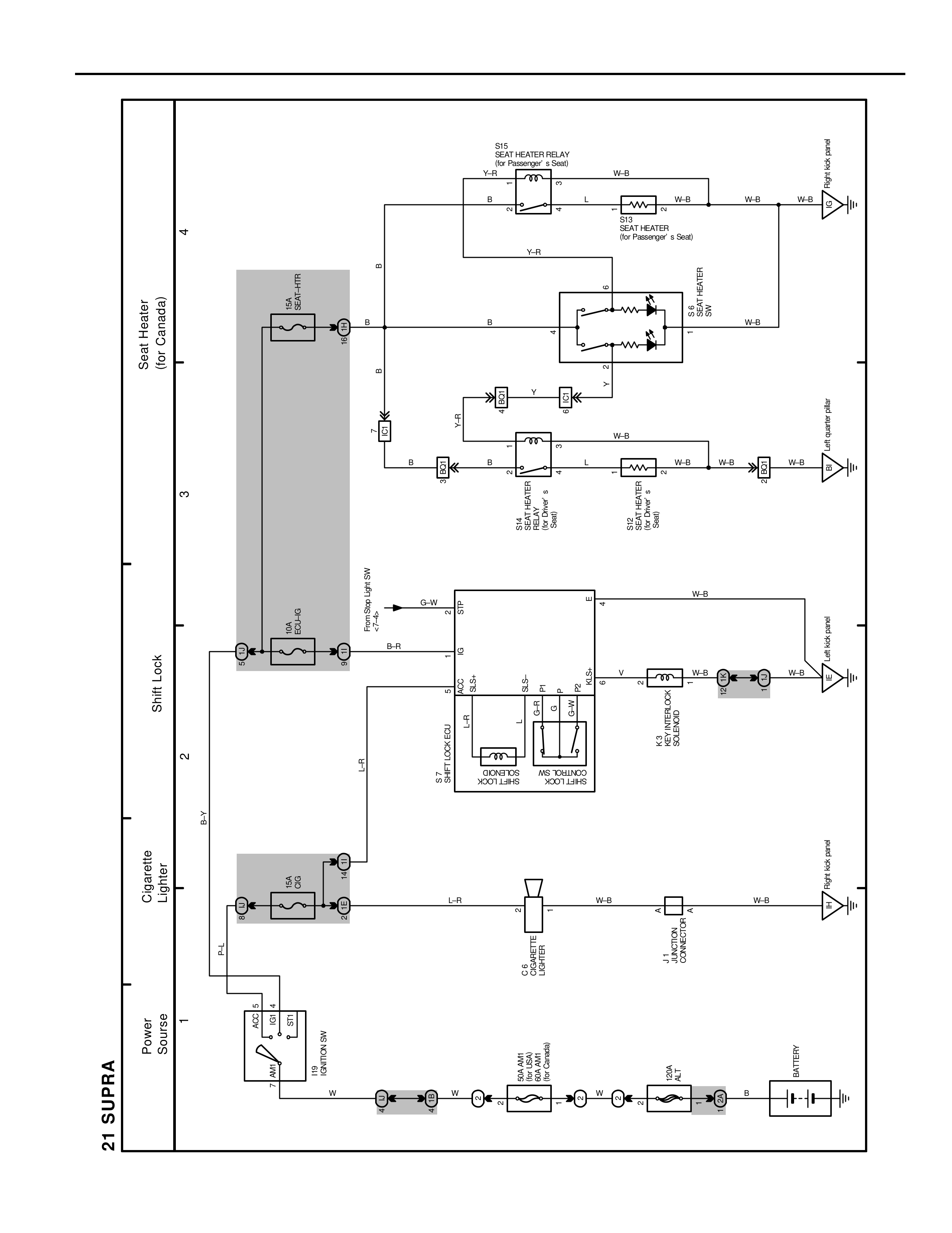
21 SUPRA
Power Source
IGN-SW
IG SW
B+
IG
ST
IGN-AM
AM
8A W
W
W
W
W
W
W
B
BATTERY
ALT
100A
IG
SW
IG SW
ALT 120A
ALT 140A
Cigarette Lighter
B-L
CIG
IG SW
IG
L-R
Y
W-B
A
W-B
Fuse to panel
CIGARETTE LIGHTER
1 JUNCTION CONNECTOR
Shift Lock
B-L
IG
IG SW
IG3 COAG
O-W
O
U
W-B
Q2 IG INTERLOCK SOLENOID
B-R
O
V
W-B
W-B
Fuse to panel
J-R
S7 A/T PARK/NEUTRAL POSITION SWITCH
IG
C-L
C-B
C-L
S31 LO
S5
E
P
R
D
D 0 D 1 P S
D
C-B
WD C1 BULB 10 XXX1 LHRS
WD C1 BULB 10 XXX1 LHRS
3
Seat Heater (for Canada)
Seat Heater
IG
IG SW
SEAT HEATER-RR
B
B
B
B
W-B
W-B
Y-R
V-R
Y
Y-R
W-B
W-B
W-B
W-B
W-B
Fuse to panel
B
B
Z
L
SEAT HEATER-SW
S2 SEAT HEATER (for Passenger's Seat)
S1 SEAT HEATER RELAY (for Passenger's Seat)
Y-R
B
L
SEAT HEATER (for Passenger's Seat)
V-B
W-B
W-B
W-B
Fuse to panel
B
O
O
B
S24 SEAT HEATER SW
S25 SEAT HEATER (for Driver's Seat)
S22 SEAT HEATER (for Driver's Seat)
S23 SEAT HEATER (for Driver's Seat)
4