
100%
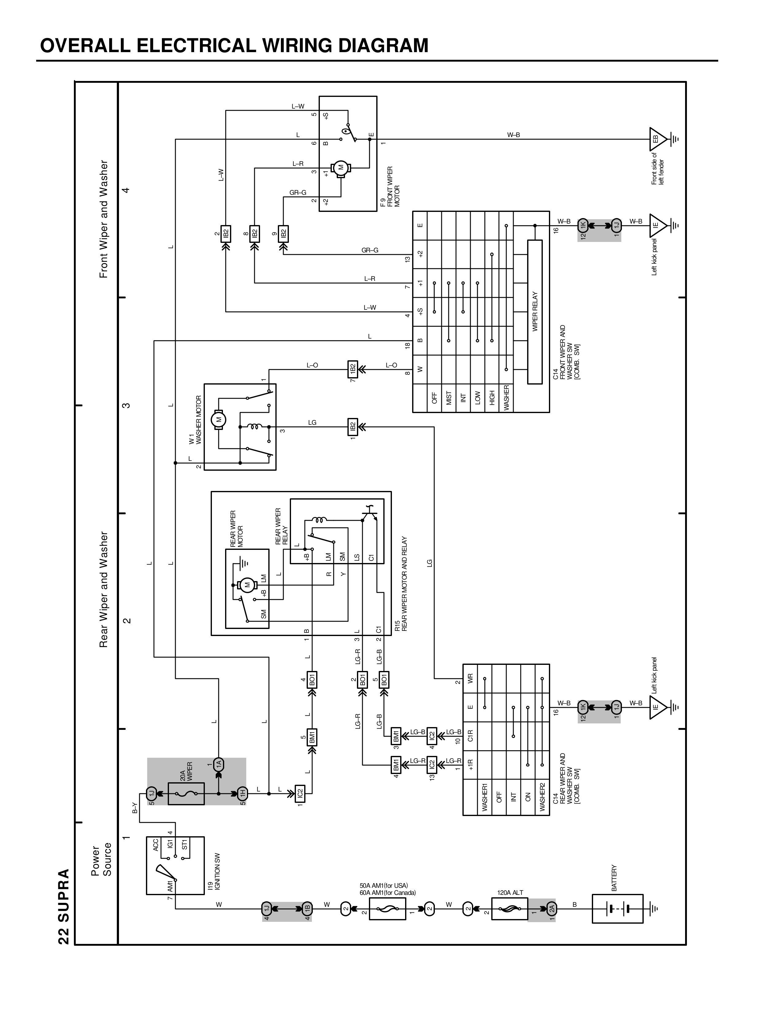
OVERALL ELECTRICAL WIRING DIAGRAM
22 SUPRA
Power Source
IG1 SW
IG2 SW
W
50A (Main) USA
60A (Main) Canada
W
120A ALT
W
B
BATTERY
Rear Wiper and Washer
2
REAR WIPER MOTOR
REAR WIPER RELAY
REAR WIPER MOTOR
SW
IM
SF
LG
G
B
LG
LG-B
L
LG-B
IG2
L
LG-B
B
L-R
B
L
B-w
WASHER
OFF
C3
INT
ON
C4
WASHER
ALL WEATHER BAND WASHER (85Y) WASHER SW SERIES SW
C3
C4
B
W-B
W-B
W-B
B-w
Wiper and Washer
3
WIPER MOTOR
IG2
LG
L-O
L-O
W
M
B
LO
OFF
INT
HI
INT
LOW
HI
WASHER
ALL WEATHER BAND WASHER (85Y) WASHER SW SERIES SW
WIPER RELAY
LO
MIST
W-B
W-B
Front Wiper and Washer
4
L-W
L
L
W-B
L
W-B
L-R
GR-G
FRONT WIPER MOTOR
RELAY WIPER
IG2
L
GR-G
L-R
L-W
L
LO
HI
W
MIST
B
W
M
LO
OFF
INT
HI
INT
LOW
HI
WASHER
WIPER RELAY
ALL WEATHER BAND WASHER (85Y) WASHER SW SERIES SW
W-B
W-B
Left Main