
EG–590
ENGINE – 2JZ–GTE ENGINE TROUBLESHOOTING
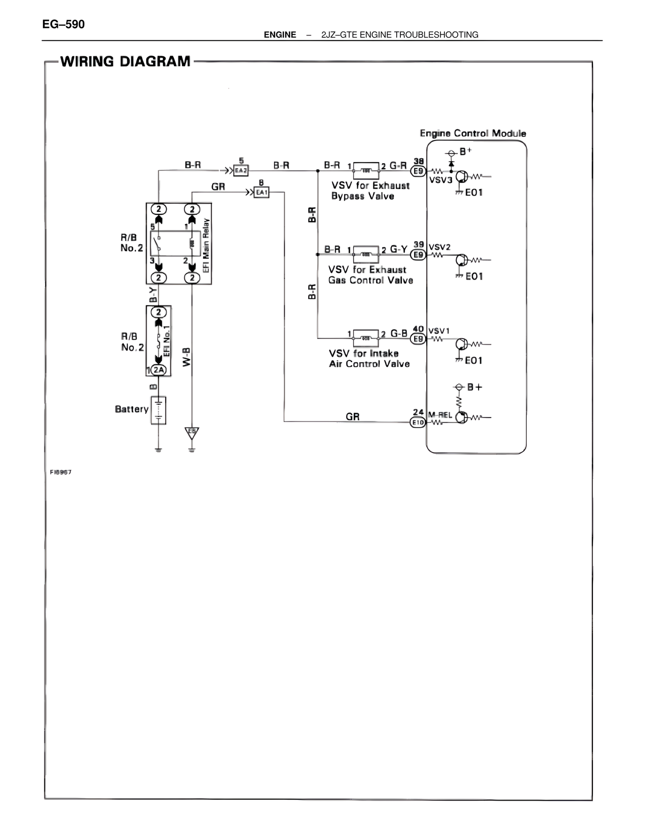
WIRING DIAGRAM
Engine Control Module
B+
VSV3
E01
B-R
EA2 5
B-R
B-R 1 2 G-R 38
E9
VSV for Exhaust
Bypass Valve
GR
EA1 8
B-R
R/B
No.2
EFI Main Relay
B-R 1 2 G-Y 39 VSV2
E9
VSV for Exhaust
Gas Control Valve
E01
B-Y
R/B
No.2
EFI No.1
W-B
1 2 G-B 40 VSV1
E9
VSV for Intake
Air Control Valve
E01
B+
M-REL
GR 24
E10
2A
Battery
FI6967