
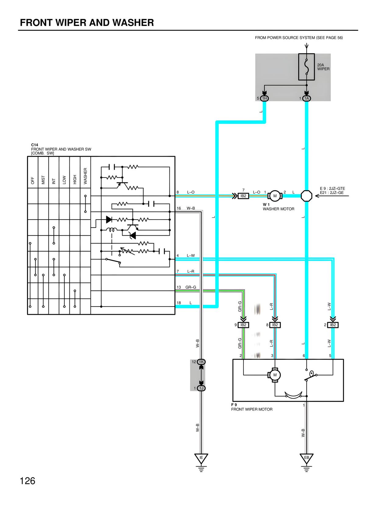
FRONT WIPER AND WASHER
FROM POWER SOURCE SYSTEM (SEE PAGE 56)
20A
WIPER
5 1H 1 1A
C14
FRONT WIPER AND WASHER SW
[COMB. SW]
OFF
MIST
INT
LOW
HIGH
WASHER
8 L–O
16 W–B
4 L–W
7 L–R
13 GR–G
18 L
7 L–O 1 M 2
IB2
W 1
WASHER MOTOR
E 9 : 2JZ-GTE
E21 : 2JZ–GE
GR–G L–R L–W
9 IB2 8 IB2 2 IB2
GR–G L–R L–W
2 3 6 5
M
F 9
FRONT WIPER MOTOR
W–B
12 1K
1 1J
W–B
W–B
IE
EB
1
126