
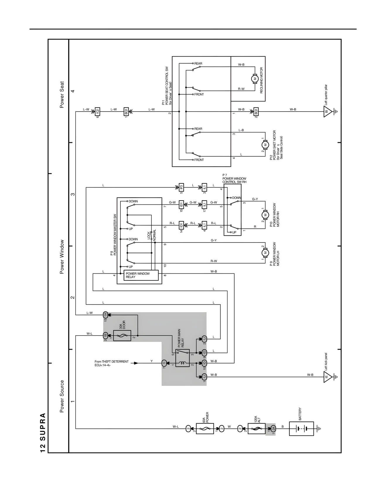
12 SUPRA
Power Source
Power Window
Power Seat
1
2
3
4
BATTERY
B
120A ALT
60A POWER
W-L
W
W-L
3MA DOOR
From THEFT DETERRENT ECU<14-4>
Y
POWER MAIN RELAY
W-B
W-B
L
L
L
L
L-W
L
POWER WINDOW RELAY
P 3
POWER WINDOW MASTER SW
DOWN
UP
DOWN
UP
LOCK NORMAL
G-W
R-L
G-Y
R-W
W-B
P 7
POWER WINDOW CONTROL SW RH
G-W
R-L
DOWN
UP
G-W
R-L
DOWN
G-Y
R
M1
POWER WINDOW MOTOR RH
M2
POWER WINDOW MOTOR LH
L-W
L-W
L-W
P 11
POWER SEAT CONTROL SW
(w/ Seat Heater)
REAR
FRONT
REAR
FRONT
W-B
R-W
W-B
L-B
L
M2
RECLINING MOTOR
M2
POWER SAET MOTOR
(for Driver's
Seat Slide Control)
W-B
W-B
Left quarter pillar
Left kick panel
W-B
W-B