
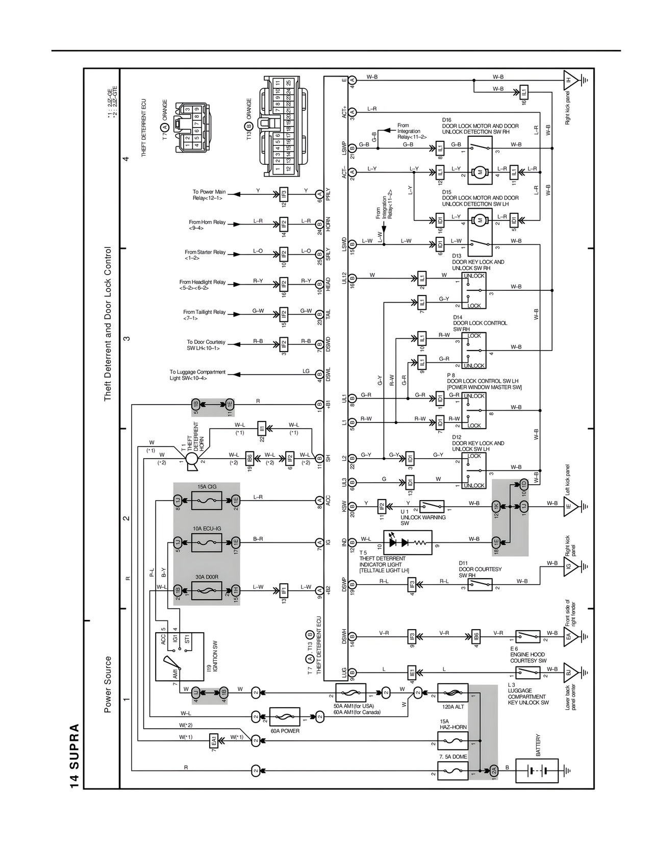
14 SUPRA
Theft Deterrent and Door Lock Control
Power Source
*1: 3ZZ-GE
*2: 1MZ-FE
THEFT DETERRENT ECU
T7 ORANGE
T10 ORANGE
4
To Power Main
Relay<12-1>
Y
From Horn Relay
<9-4>
L-R
From Starter Relay
<1-2>
L-O
From Headlight Relay
<5-2><6-2>
R-Y
From Taillight Relay
<7-1>
G-W
To Door Courtesy
SW LH<10-1>
R-B
To Luggage Compartment
Light SW<10-4>
LG
3
PRLY
HORN
SELY
HEAD
TAIL
DSMD
DSWL
2
W (*1)
(*2)
W-L
W-L (*1)
W-L (*2)
THEFT
DETERRENT
SW
W-L
W-L
W-L (*2)
SH
15A CIG
L-R
ACC
10A ECU-IG
B-R
IG
30A DOOR
L-W
L-W
+B2
P-L
B-Y
W-L
R
ACC
IG1
ST1
I19 IGNITION SW
7 AM2
W
W
W-L
W (*2)
W (*1)
W (*1)
R
1
60A POWER
50A AM1(for USA)
60A AM1(for Canada)
1SA
HAZ-HORN
7.5A DOME
BATTERY
120A ALT
T13 THEFT DETERRENT ECU
T7 THEFT DETERRENT ECU
DSWP G-B
ACT L-R
LSWP G-B
ACT L-Y
LSWD L-W
UL12 W
UL1 G-R
L1 R-W
UL2 G-Y
UL3 G
KSW Y
DSWP V-R
LUG L
From Integration
Relay<11-2>
From Integration
Relay<11-2>
D16
DOOR LOCK MOTOR AND DOOR
UNLOCK DETECTION SW RH
D15
DOOR LOCK MOTOR AND DOOR
UNLOCK DETECTION SW LH
D13
DOOR KEY LOCK AND
UNLOCK SW RH
D14
DOOR LOCK CONTROL
SW RH
LOCK
UNLOCK
P9
DOOR LOCK CONTROL SW LH
[POWER WINDOW MASTER SW]
G-R UNLOCK
G-R LOCK
R-W LOCK
D12
DOOR KEY LOCK AND
UNLOCK SW LH
LOCK
UNLOCK
U1 UNLOCK WARNING
SW
T5
THEFT DETERRENT
INDICATOR LIGHT
[TELLTALE LIGHT LH]
D11
DOOR COURTESY
SW RH
DSWH V-R
E6
ENGINE HOOD
COURTESY SW
F-3
LUGGAGE
COMPARTMENT
KEY UNLOCK SW
W-B
W-B
W-B
W-B
W-B
W-B
W-B
W-B
W-B
W-B
W-B
W-B
W-B
W-B
W-B
W-B
L-R
L-R
L-R
L-Y
L-R
L-W
L-W
W
W
G-Y
G-B
G-B
G-R
G-R
R-W
R-W
G-Y
G
Y
W-B
R-L
V-R
V-R
L
W-B
B
Right kick panel
Left kick panel
Right side of
right fender
Lower back
panel center