
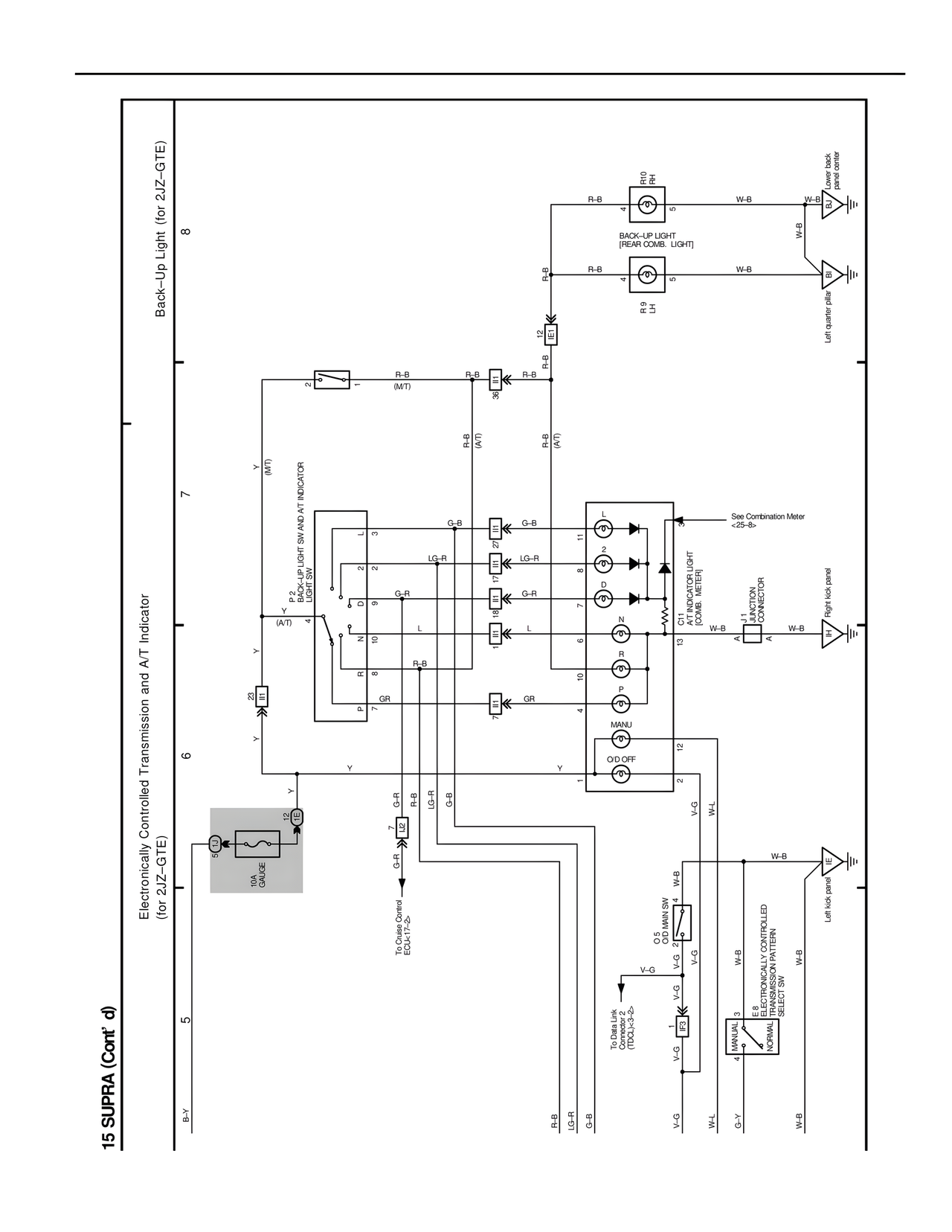
15 SUPRA (Cont'd)
Electronically Controlled Transmission and A/T Indicator
(for 2JZ–GTE)
Back–Up Light (for 2JZ–GTE)
5
6
7
8
B-Y
Y
Y
Y
(M/T)
(A/T)
19A
GAUGE
P2
BACK-UP
LIGHT SW
G-R
R-B
LG-R
G-B
To Cruise Control
ECU417-25
G-R
(M/T)
(A/T)
3
2
1
6
5
4
7
8
9
GR
R-B
L
G-R
LG-R
G-B
R-B
(M/T)
R-B
(A/T)
R-B
(A/T)
R-B
R-B
GR
L
G-R
LG-R
G-B
38
19
18
17
16
E1
12
R-B
To Data Link
Connector 2
(TDCL25-8...
R-B
LG-R
G-B
V-G
V-G
V-G
V-G
W-L
G-Y
W-B
O5
O.D MAIN SW
1
2
3
4
MANUAL
NORMAL
E8 ELECTRONICALLY CONTROLLED
TRANSMISSION PATTERN
SELECT SW
V-G
W-B
V-G
W-B
Y
Y
V-G
W-L
W-B
W-B
MR5
1
2
3
4
5
6
7
8
9
10
11
12
13
O'D OFF
MANU
P
R
N
D
L
C11
A/T INDICATOR LIGHT
(COMBINATION METER)
See Combination Meter
<25-8>
JUNCTION
CONNECTOR
A
B
C
W-B
W-B
W-B
W-B
Right kick panel
Left kick panel
R10
RH
R9
LH
BACK-UP LIGHT
[REAR COMB. LIGHT]
Left quarter pillar
Rear body
panel center
W-B
W-B
W-B
W-B