
AT2–9
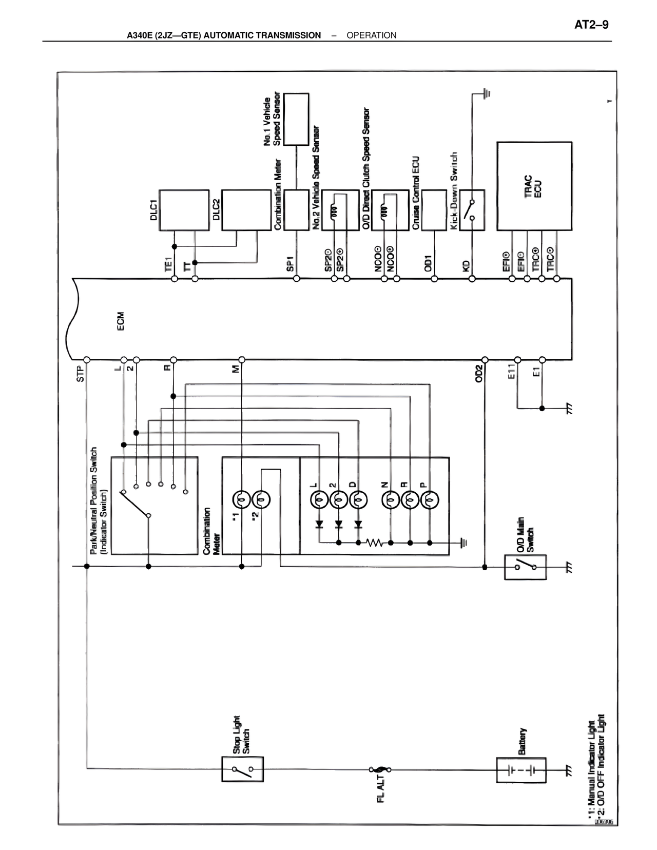
A340E (2JZ—GTE) AUTOMATIC TRANSMISSION – OPERATION
DLC1
DLC2
TE1
TT
No.1 Vehicle Speed Sensor
Combination Meter
SP1
No.2 Vehicle Speed Sensor
SP2⊕
SP2⊖
O/D Direct Clutch Speed Sensor
NCO⊕
NCO⊖
Cruise Control ECU
OD1
Kick-Down Switch
KD
TRAC ECU
EFI⊕
EFI⊖
TRC⊕
TRC⊖
ECM
STP
L
2
R
M
OD2
E11
E1
Park/Neutral Position Switch
(Indicator Switch)
Combination Meter
*1
*2
L 2 D N R P
O/D Main Switch
Stop Light Switch
FL ALT
Battery
777
*1: Manual Indicator Light
*2: O/D OFF Indicator Light
906395