
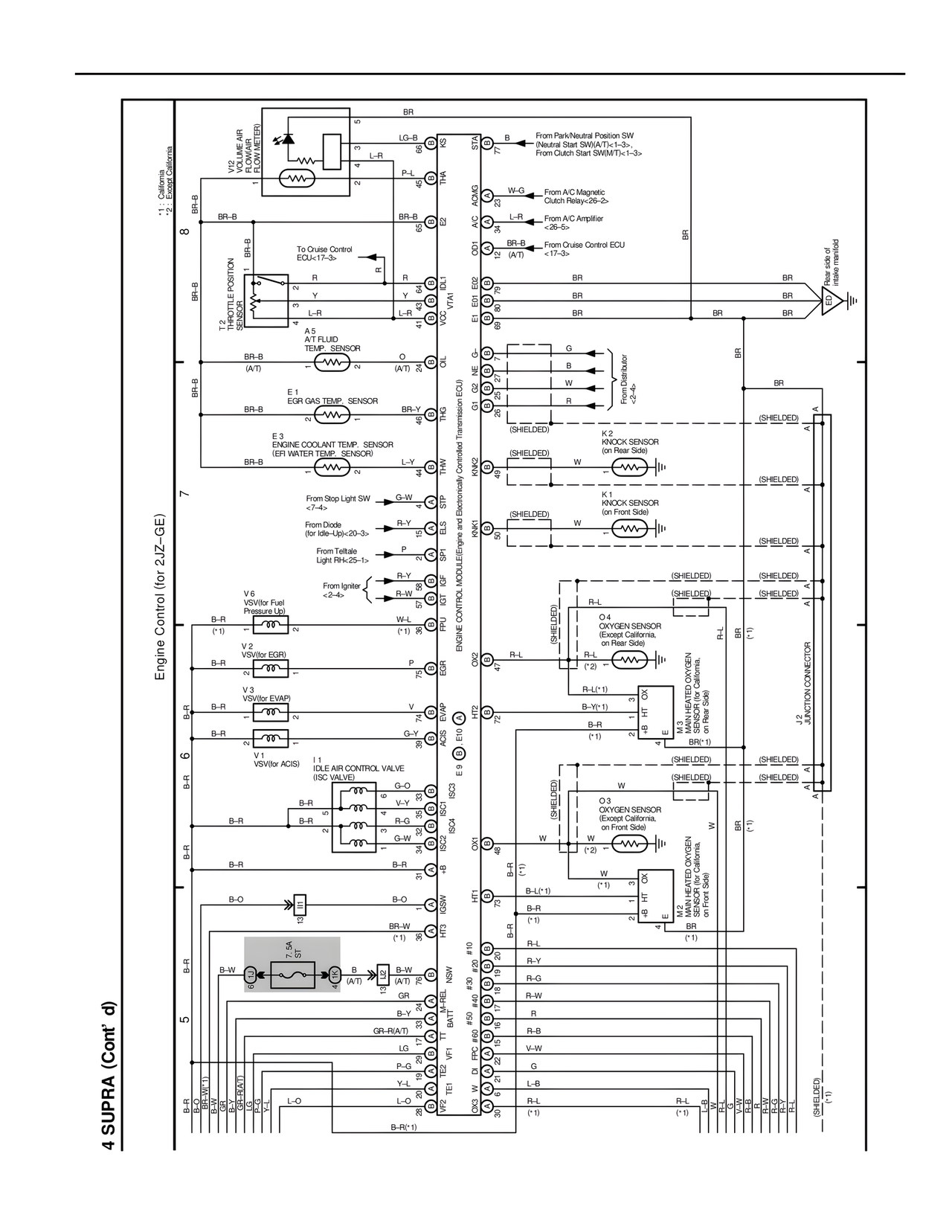
4 SUPRA (Cont'd)
Engine Control (for 2JZ-GE)
*1 California
*2 Except California
BR
V12
MAF/MAF AIR
FLOW METER
(FLOW METER)
LG-B
L-R
P-L
BR-B
BR-B
BR-B
BR-B
To Cruise Control
ECU<17-3>
T2
THROTTLE POSITION
SENSOR
R
Y
L-R
BR-B
A.5
A/T FLUID
TEMP. SENSOR
O
(A/T)
BR-B
E.1
EGR GAS TEMP. SENSOR
BR-Y
BR-B
E-3
ENGINE COOLANT TEMP. SENSOR
(EFI WATER TEMP. SENSOR)
L-Y
From Stop Light SW
<7-4>
G-W
From Diode
(for Idle-Up)<20-3>
R-Y
From Telltale
Light RH<25-1>
From Igniter
<2-4>
R-Y
R-W
V.6
VSV(for Fuel
Pressure Up)
B-R
(*1)
V.2
VSV(for EGR)
B-R
V.3
VSV(for EVAP)
B-R
V.1
VSV(for ACIS)
B-R
I.1
IDLE AIR CONTROL VALVE
(ISC VALVE)
G-O
V-Y
R-G
G-W
B-R
B-R
B-R
B-O
BR-W
(*1)
B-R
B-W
B (A/T)
B-W (A/T)
GR
GR-B (A/T)
B-Y
LG
GR-R(A/T)
P-G
Y-L
L-O
STA
ACMG
OD.1
AC
IDI
VTA1
OIL
TH3
THW
STP
BLS
SPL
GF
GT
GT
FPU (*1)
EGR
EVAP
ACIS
E10
ISC1
ISC3
ISC4
ISC2
HT1
HT3
NSW
A-REL
BATT
VFI
TE2
TE1
L-O
Y2
B-R(*1)
ENGINE CONTROL MODULE(Engine and Electronically Controlled Transmission ECU)
B
From Park/Neutral Position SW
(Neutral Start SW(A/T)<1-3>,
From Clutch Start SW(M/T)<1-3>)
W-G
From A/C Magnetic
Clutch Relay<26-2>
L-R
From A/C Amplifier
<26-5>
BR-B
From Cruise Control ECU
(A/T) <17-3>
BR
BR
BR
G
B
W
R
From Distributor
<2-4>
KNK2
(SHIELDED)
(SHIELDED)
K.2 KNOCK SENSOR
(on Rear Side)
W
KNK1
(SHIELDED)
(SHIELDED)
K.1 KNOCK SENSOR
(on Front Side)
W
(SHIELDED)
(SHIELDED)
(SHIELDED)
(SHIELDED)
OX2
R-L
O-4
OXYGEN SENSOR
(Except California,
on Rear Side)
R-L
(*2)
R-L(*1)
HT OA
B-Y(*1)
B-R
(*1)
BR(*1)
M.3
HEATED OXYGEN
SENSOR (California,
on Rear Side)
(SHIELDED)
(SHIELDED)
(SHIELDED)
(SHIELDED)
OX1
W
O.3
OXYGEN SENSOR
(Except California,
on Front Side)
W
(*2)
B-L(*1)
HT OA
B-R
(*1)
B-R
(*1)
BR
(*1)
M.2
HEATED OXYGEN
SENSOR (California,
on Front Side)
JUNCTION CONNECTOR
Rear side of
instrument panel
BR
BR
BR
BR
R-L
W
W
R-L
(*1)
BR
(*1)
B-R (*1)
R-Y
R-G
R-W
R
R-B
V-W
G
L-B
R-L
R-L (*1)
(SHIELDED)
(*1)
NE-G
NE
G1
G2
G3
OIL