
OVERALL ELECTRICAL WIRING DIAGRAM
17 SUPRA
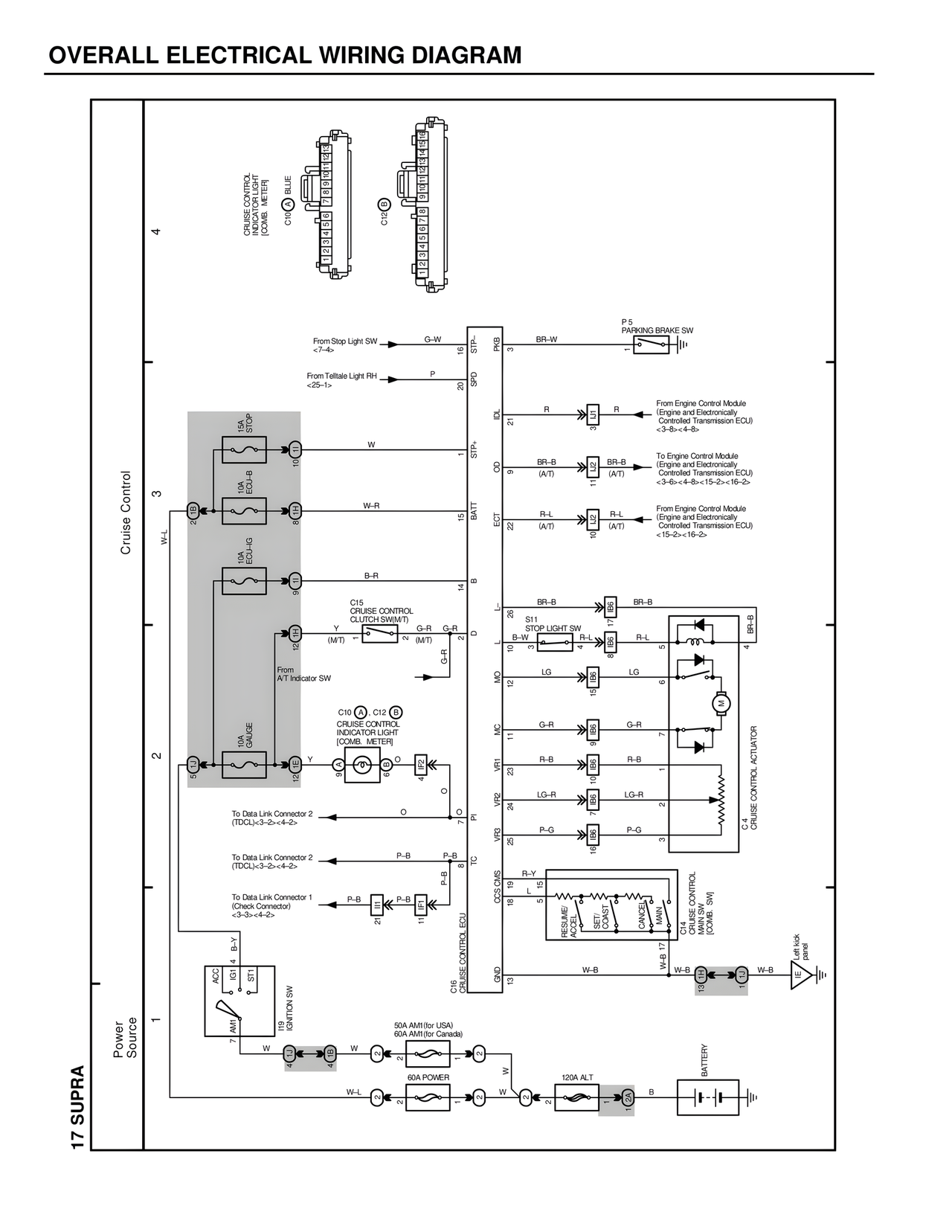
Cruise Control
Power Source
CRUISE CONTROL INDICATOR LIGHT (COMB. METER)
C10 (A) BLUE
C12 (B)
P 5
PARKING BRAKE SW
From Stop Light SW <7-4>
G-W
STP-
PKB
3
BR-W
From Telltale Light RH <25-1>
P
SPD
From Engine Control Module (Engine and Electronically Controlled Transmission ECU)
<3-8><4-8>
R
R
4
To Engine Control Module (Engine and Electronically Controlled Transmission ECU)
<3-6><4-8><15-2><16-2>
BR-B (A/T)
BR-B (A/T)
5
From Engine Control Module (Engine and Electronically Controlled Transmission ECU)
<15-2><16-2>
R-L (A/T)
R-L (A/T)
ECT
W
STP+
W-R
15
BATT
B-R
B
14
C15
CRUISE CONTROL CLUTCH SW(M/T)
Y
(M/T)
G-R
G-R
D
From A/T Indicator SW
C10 (A) C12 (B)
CRUISE CONTROL INDICATOR LIGHT [COMB. METER]
Y
O
O
To Data Link Connector 2 (TDCL)<3-2><4-2>
O
To Data Link Connector 2 (TDCL)<3-2><4-2>
P-B
P-B
To Data Link Connector 1 (Check Connector) <3-3><4-2>
P-B
P-B
IG1
IG2
ST1
AM1
IGNITION SW
W
50A AM1(for USA)
60A AM1(for Canada)
60A POWER
W-L
L
BR-B
BR-B
28
S11
STOP LIGHT SW
B-W
R-L
10
3
4
5
LG
LG
6
G-R
G-R
7
R-B
R-B
LG-R
LG-R
P-G
P-G
CRUISE CONTROL ACTUATOR
R-Y
CQS CMS
18
5
L
RESUME
SET/COAST
CANCEL
MAIN
C14
CRUISE CONTROL SW (COMB. SW)
W-B
W-B 17
W-B
W-B
GND
13
C16 CRUISE CONTROL ECU
W
120A ALT
BATTERY
B
W-L
W
IG1 4
IG2 14
ST1 8
AM1 7
FUSE
STOP 1
FUSE
ECU-B
FUSE
ECU-G
FUSE
GAUGE
W-L
VR1
VR2
VR3
MC
MO
OD
OP
OD 4
OP 5
2
STP- 1
SPD 20
B-Y
W
W
Left kick panel