
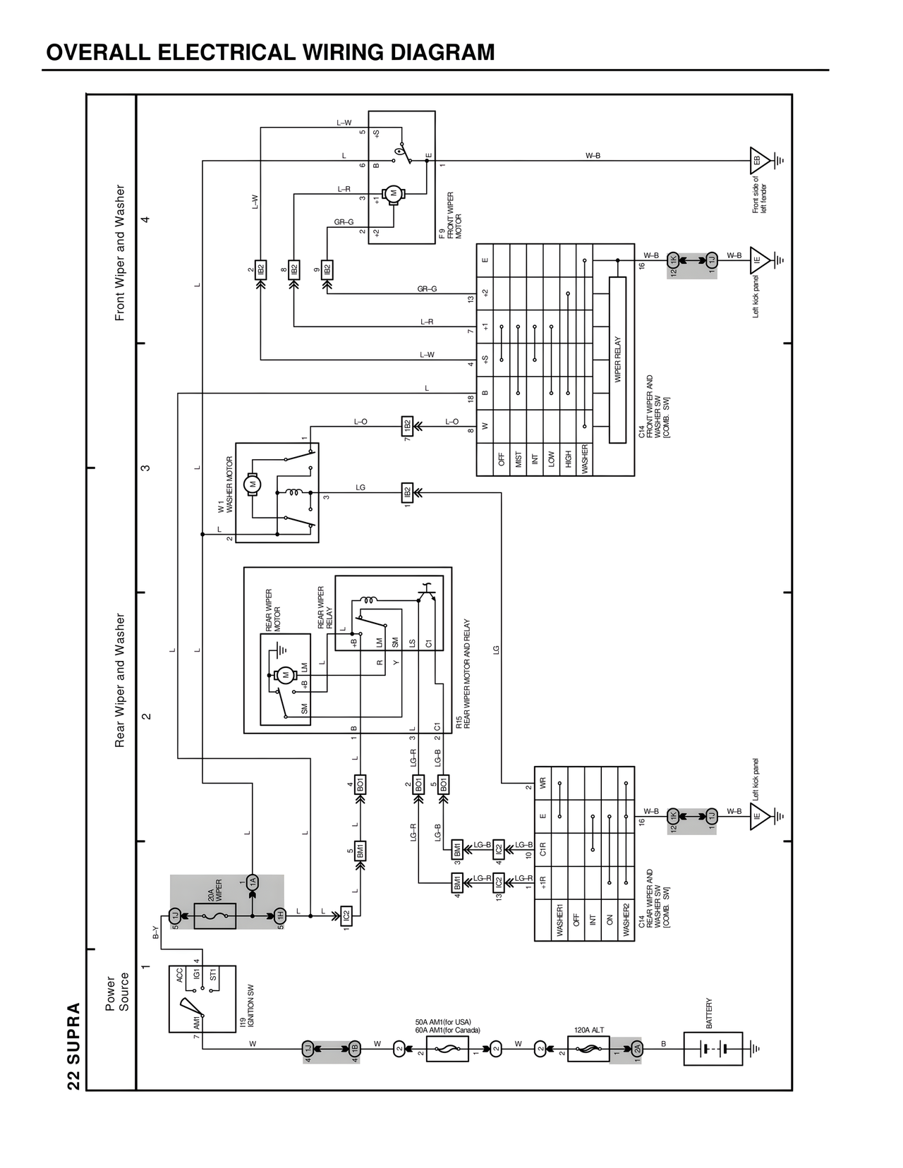
OVERALL ELECTRICAL WIRING DIAGRAM
22 SUPRA
Front Wiper and Washer
4
L-W
L
L-W
L-R
GR-G
L-R
L-W
L
F8
FRONT WIPER
MOTOR
W-B
Front side of
left fender
W-B
Left kick panel
E
GR-G
13
L-R
7
L-W
4
L
18
W
WIPER RELAY
C14
FRONT WIPER AND
WASHER SW
[COMB. SW]
OFF
MIST
INT
LOW
HIGH
WASHER
Rear Wiper and Washer
3
L-O
L-O
L
LG
W1
WASHER MOTOR
2
REAR WIPER
RELAY
REAR WIPER
MOTOR (RH)
-B
LM
LS
CI
B
L
Y
SM
R15
REAR WIPER MOTOR AND RELAY
LG
B
LG-R
LG-B
CI
WR
E
W-B
Left kick panel
W-B
LG-R
LG-B
LG-B
LG-R
CIR
LG-R
15
13
10
5
2
HR
C14B
REAR WIPER AND
WASHER SW
[COMB. SW]
WASHER
OFF
INT
ON
WASHER2
Power Source
1
20A WIPER
B-Y
ACC
IG1
ST1
7 AM1
IG1
IGNITION SW
W
50A AM1(for USA)
60A AM1(for Canada)
W
120A ALT
W
B
BATTERY