
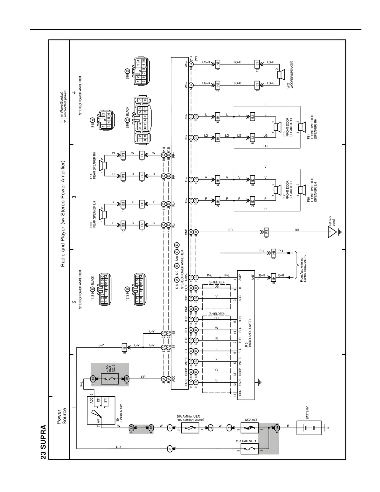
23 SUPRA
Power
Source
1
ACC 5
IG1
ST1
AM1
IGNITION SW
7 AM1
1 2
L-Y
P-L
8 9 30
15A
RAD
NO. 2
GR
L-Y
50A AM1 (for USA)
60A AM1 (for Canada)
W
4 3
W
2 1
120A ALT
B
BATTERY
20A RAD NO. 1
2
L-Y
2
STEREO POWER AMPLIFIER
2
*1 S9 S10
*2 S9 S10
BLACK
L-Y
L-Y
8 BR2
L-Y
C
RB2
4B1
S8 S9 S10
STEREO POWER AMPLIFIER
AMP
OUT
OUT
GND
GND
R R
R L
F R
F L
FADE BEEP MUTE
13 12 11
P-L P-L
LG
V
BR
W
R
L
Y
G
B
(SHIELDED)
LG
(SHIELDED)
BR
15
14
13
12
11
10
9
8
7
6
5
4
3
2
1
ANT
B-R
ACC
R R
R L
F R
F L
MUTE BEEP FADE
GND
RADIO AND PLAYER
AMP
8
B-R
B
P-L
From Anti-Theft
Control Relay-24-3-
BR
BR
2
F2
A/C kick
panel
P-L
P-L
9
N1
Radio and Player (w/ Stereo Power Amplifier)
3
REAR SPEAKER LH
IR3
Y
Y 11
Y
RE2
B
B
RE2
10
REAR SPEAKER RH
IR4
W
W 32
W
RR-
R
R
RR+
10
3
RL-
RL+
11
*1 2
RR-
RL-
F-
F+
4
WF-(*1)
WF+(*1)
14
LG-R
LG-B
LG-R
LG-B
LG-R
LG-B
W-2
WOOFER/SPEAKER
L
L
LT1
L
L
LG
LG
LT1
LG
LG
F13
FRONT DOOR
SPEAKER RH
FRONT TWEETER
(SPEAKER) RH
V
V
LT1
V
V
P
P
LT1
P
P
F12
FRONT DOOR
SPEAKER LH
FRONT TWEETER
(SPEAKER) LH
STEREO POWER AMPLIFIER
4
S10
S B0
BLACK
*1 : w/ Woofer(Speaker)
*2 : w/o Woofer(Speaker)