← 276WD · 277

*1 : 2JZ-GTE
*2 : 2JZ-GE
COOL
WARM
OFF
FAN0- FAN1-
A/C
REC
FRE
PACE AUTO
BL
FD FOOT
FD
DEF
Re-
REDO- DEF
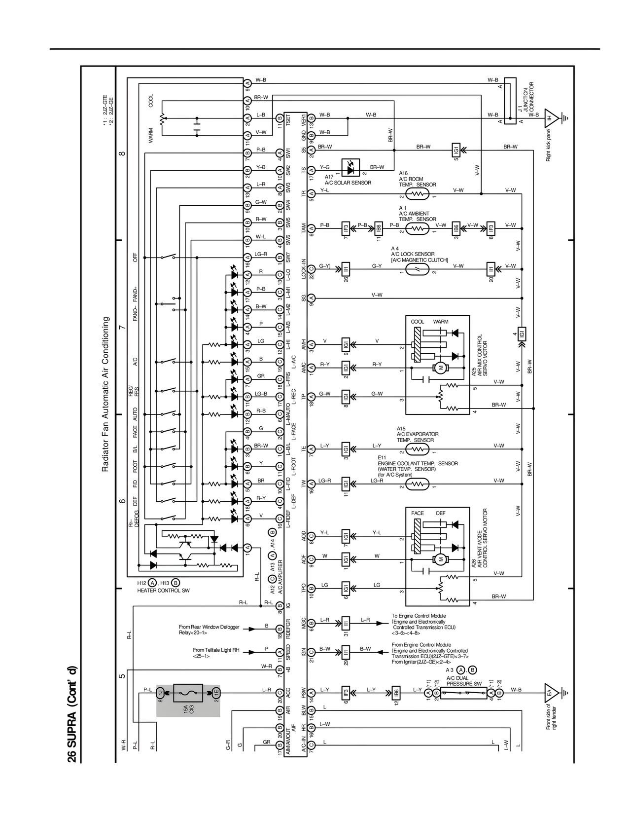
Radiator Fan Automatic Air Conditioning
H12 A H13 B
HEATER CONTROL SW
From Rear Window Defogger Relay<20-1>
From Telltale Light RH <25-1>
W-R
P-L
P-L
W-R P-L R-L
W-B
BR-W
L-B
V-W
P-B
Y-B
L-R
G-W
R-W
W-L
LG-R
R
P-B
B-W
P
LG
B
GR
LG-B
R-B
G
BR-W
Y
BR
R-Y
V
R-L
R-L
R-L
SW1
SW2
SW3
SW4
SW5
SW6
SW7
10
11
38
17
16
15
14
13
12
11
17
16
15
14
13
12
10
9
8
7
6
5
4
GND VERT
1SET
TS
TR
TAM
LOCK-IN
L-LO
L-M1
L-M2
L-HI
L-RS
L-AUTO
L-REC
L-FACE
L-BL
L-FOOT
L-DEF
AOD
AOF
TPO
AC2
PSV
BLW
HR
AF
A/C-IN
IGN
MDC
RODFAN
SPEED
A14
A13
A12
A/C AMPLIFIER
W-B
W-B
BR-W
BR-W
W-B
W-B
BR-W
Y-G
Y-L
P-B
P-B
G-Yl
V-W
V
R-Y
G-W
L-Y
LG-R
Y-L
W
LG
L-Y
L-R
B-W
L-R
L-Y
L
L-W
GR
G-R
W-R
P
B
13
2
55
10
16
12
20
SG
AMH
AMC
TP
TE
TW
9
3
8
11
8
10
6
31
24
6
19
18
48
20
LGT1
LGT1
LGT1
LGT1
LGT1
LGT1
BR-W
V-W
V-W
V-W
V-W
V-W
V-W
V-W
V-W
BR-W
V-W
BR-W
W-B
BR-W
V-W
BR-W
V-W
BR-W
V-W
A17
A/C SOLAR SENSOR
A16
A/C ROOM TEMP. SENSOR
A 1
A/C AMBIENT TEMP. SENSOR
A 4
A/C LOCK SENSOR
[A/C MAGNETIC CLUTCH]
COOL WARM
AIR MIX CONTROL SERVO MOTOR
A15
A/C EVAPORATOR TEMP. SENSOR
E11
ENGINE COOLANT TEMP. SENSOR
(WATER TEMP. SENSOR)
(for A/C System)
FACE DEF
AIR VENT MODE CONTROL SERVO MOTOR
To Engine Control Module
(Engine and Electronically Controlled Transmission ECU)
<3-6><4-8>
From Engine Control Module
(Engine and Electronically Controlled Transmission ECU)(2JZ-GTE)<3-7>
From Igniter(2JZ-GE)<2-4>
A 3 A B
A/C DUAL PRESSURE SW
L-W
W-B
JUNCTION CONNECTOR
Right kick panel
Front fender right fender
26 SUPRA (Cont'd)