
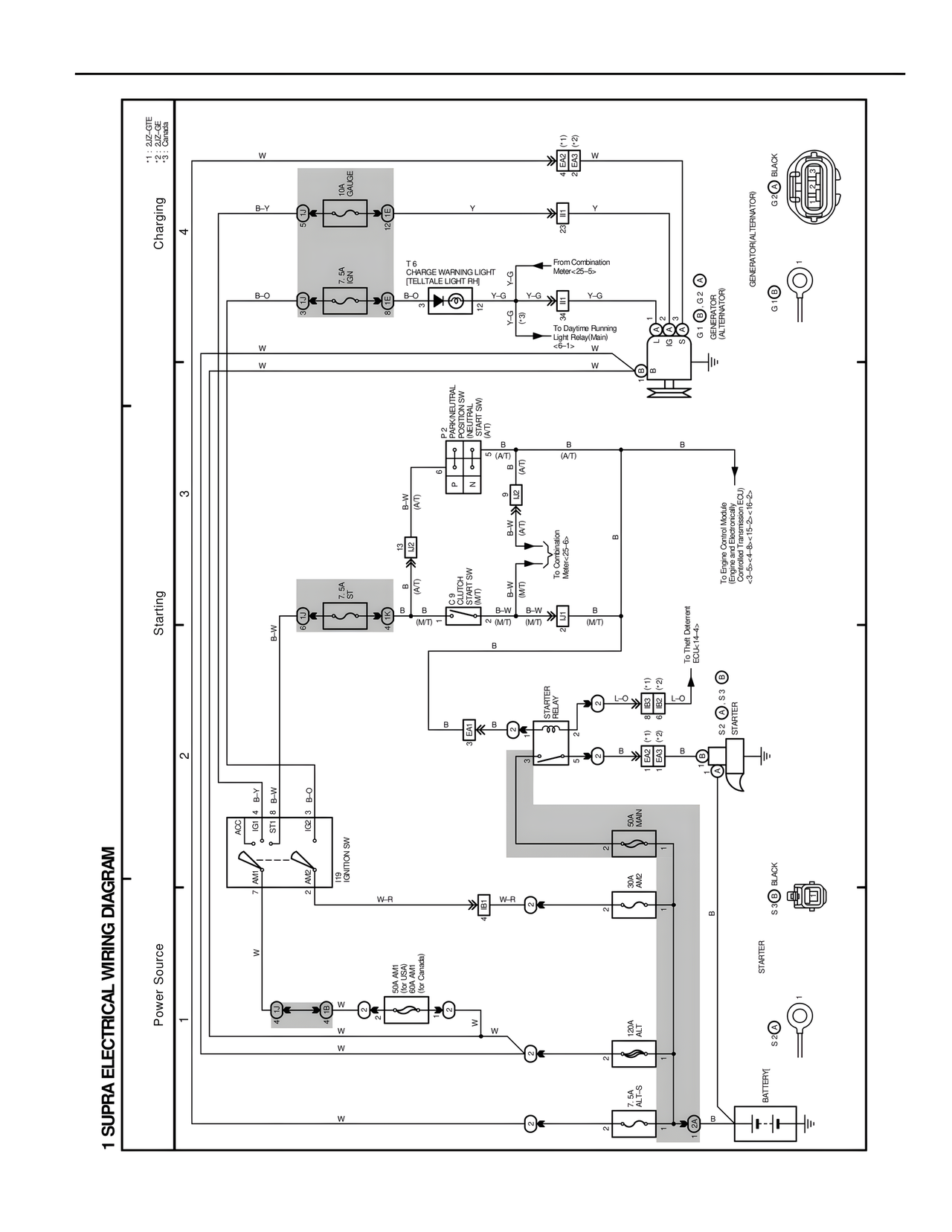
1 SUPRA ELECTRICAL WIRING DIAGRAM
*1: 2JZ-GTE
*2: N/E
*3: 2JZ-GE
Charging
4
Starting
3
2
Power Source
1
15A GAUGE
5A 7.5A
T 6
CHARGE WARNING LIGHT
[TELLTALE LIGHT RH]
From Combination
Meter<25-5>
To Daytime Running
Light Relay(Main)
<6-1>
P-2
PARK/NEUTRAL
POSITION
(NEUTRAL
START SW)
P N
6
(A/T)
B-W
(A/T)
13
1/2
(A/T)
C 8
CLUTCH
START SW
(M/T)
7.5A ST1
B-W
B-W
(M/T)
(M/T)
(M/T)
B
STARTER
RELAY
To Combination
Meter<25-6>
To Theft Deterrent
ECU<14-4>
To Engine Control Module
(Engine and Electronically
Controlled Transmission ECO)
<3-5><4-8><15-2><16-2>
ACO
IG1
ST1 B
IG2 3
AM1
7
AM2
2
IGNITION SW
W-R
150A AM1
60A AM1
(for Canada)
60A MAIN
60A AM2
120A ALT
F 5A
ALT-S
B-Y
B-W
B-O
W
W
W
W
W
W
W
W
W
W
W
W
Y
Y
Y-G
Y-G
Y-G
Y-G
B-Y
B-O
B-O
B-W
B-W
B-W
B
B
B
B
B
B
B
B
B
L-O
L-O
W-R
G 2
G 1
C 1 L G 2
GENERATOR
(ALTERNATOR)
GENERATOR (ALTERNATOR)
G BLACK
S-3 STARTER
S-2 STARTER
S BLACK
STARTER
S-2
BATTERY
(*1)
(*1 2)
(*1)
(*1 2)
B
(A/T)
(A/T)
(M/T)
G
1
2
3
4
5
6
7
8
12
34
10