
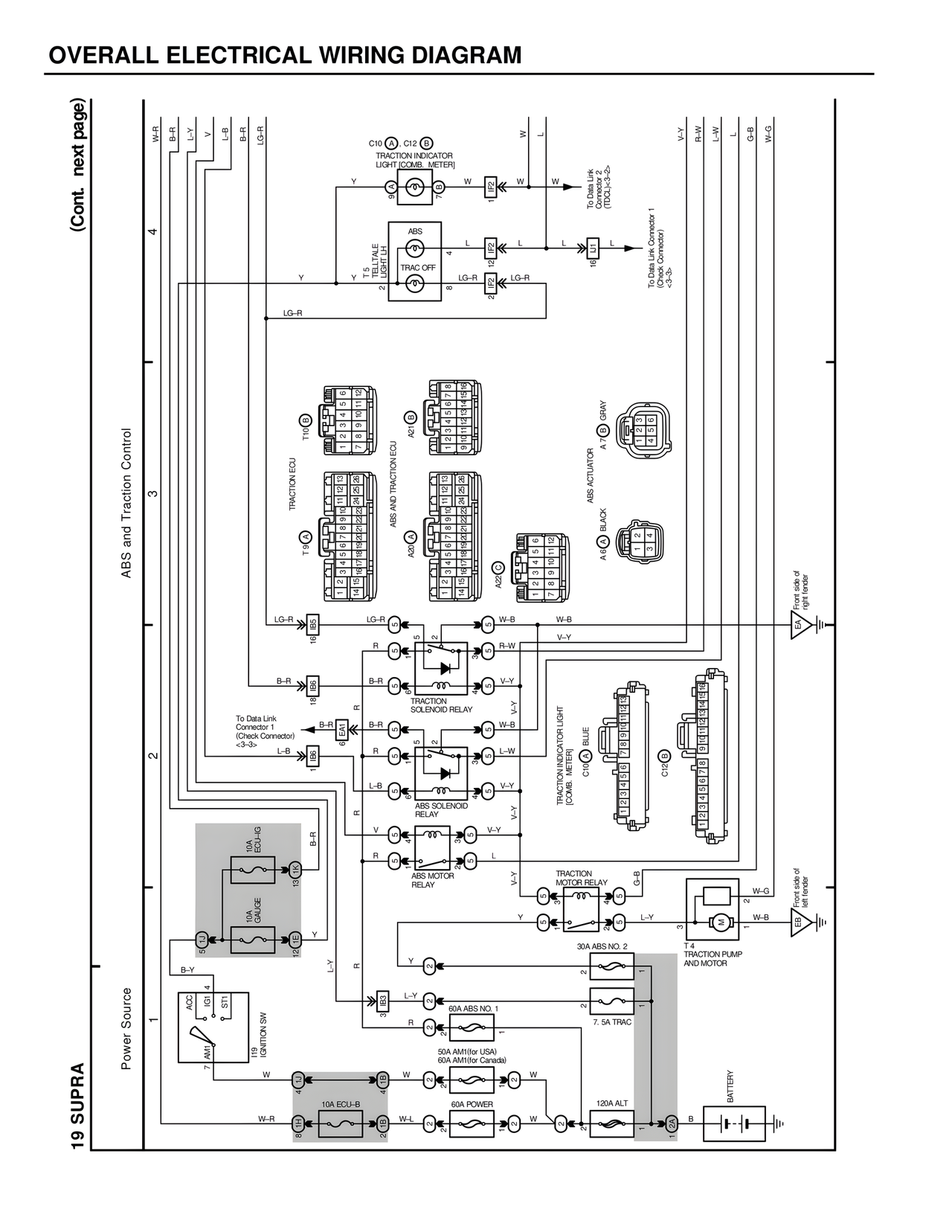
OVERALL ELECTRICAL WIRING DIAGRAM
(Cont. next page)
19 SUPRA
ABS and Traction Control
Power Source
C10 A C12 B
TRACTION INDICATOR
LIGHT [COMB...METER]
W
Y
W W
To Data Link
Connector 1
(TDCL<3-2>
Check Connector)
ABS
TELLTALE
LIGHT (H
TRAC OFF
L
LG-R
LG-R
To Data Link Connector 1
(Check Connector)
LG-R
TRACTION ECU
T1
ABS AND TRACTION ECU
A2
ABS ACTUATOR
A GRAY
A BLACK
Front side of
right fender
LG-R B5
LG-R
W-B W-B
R
R-W
V-Y
TRACTION
SOLENOID RELAY
V-Y
B-R B6
B-R
V-Y
To Data Link
Connector 1
(Check Connector)
<3-3>
B-R B6
W-B
L-B B8
L-B
ABS SOLENOID
RELAY
V-Y
TRACTION INDICATOR LIGHT
[COMB...METER]
BLUE
C10 B
CH
V
V-Y
ABS MOTOR
RELAY
V-Y
R
L
TRACTION
MOTOR RELAY
G-B
Front side of
left fender
30A ABS NO. 2
T4
TRACTION PUMP
AND MOTOR
ECU-HG
10A
10A GAUGE
Y
L-Y
Y
L-Y
60A ABS NO. 1
R
7. 5A TRAC
ACC
IG1 4
ST1
IGNITION SW
AM1
7
B-Y
50A AM1(for USA)
60A AM1(for Canada)
W
10A ECU-B
W
60A POWER
W
120A ALT
W-R
W-L
BATTERY
B